Rare Grade II guesthouse with parking, trading bar and strong redevelopment potential..
Grade II listed property — restrictions on alterations
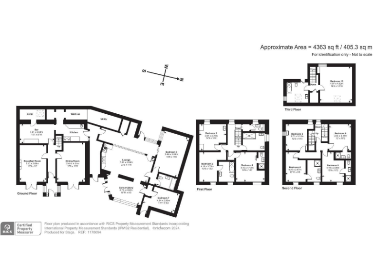
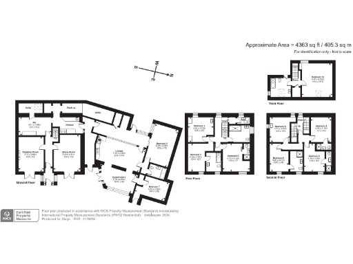
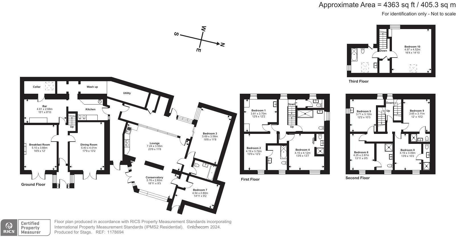
10 letting bedrooms, 6 en‑suites; plus 2‑bed apartment
Public bar, dining rooms, conservatory and courtyard seating
Large off‑street car park; garage, store and outside WC
Trades 10 months a year; closed in January and February
Excellent scope to increase food turnover and occupancy
Conversion to private house/apartments possible subject consents
Broadband and mobile service levels average
A substantial Grade II listed former merchant’s house, The Durbeyfield has traded as a long-established guesthouse and free house in West Bay since the 1960s. The property offers 10 letting bedrooms (six en-suite), an independent two‑bed apartment, public bar, dining rooms, conservatory and a large car park — a rare package in this busy coastal resort on the Jurassic Coast.
For an investor or owner-operator there is clear upside: the bar trades to locals and holidaymakers, letting rooms attract varied short‑stay markets, and turnover could be raised by adding daytime/evening dining. The site also suits conversion to a large private house or apartments (subject to planning), offering multiple exit or repositioning options.
Be realistic about constraints: listed status will restrict alterations and may complicate redevelopment or modernization. The business currently trades ten months a year (closed Jan/Feb) and broadband/mobile services are average. Full trading information and contents are available separately; the property is offered freehold and priced for a quick sale.
Set on a prominent approach into West Bay with sea and harbour glimpses from upper rooms, the location benefits from coastal tourism, National Trust cliff walks and nearby Bridport amenities. Low flood risk, ample parking and outdoor seating add operational advantages for holiday and hospitality use.
6 bedroom terraced house for sale in Brunswick Terrace, Weymouth, DT4 — £725,000 • 6 bed • 7 bath • 1772 ft²
7 bedroom hotel for sale in The Heritage B&B, 8 East Street, Weymouth, DT3 4DS, DT3 — £945,000 • 7 bed • 1 bath
Commercial property for sale in Brunswick Terrace, Weymouth, DT4 — £725,000 • 6 bed • 7 bath • 1772 ft²
12 bedroom guest house for sale in Hensleigh House, Lower Sea Lane, DT6 — £1,000,000 • 12 bed • 1 bath • 4601 ft²
12 bedroom guest house for sale in Oaklands Guest House, Glendinning Avenue, Weymouth, DT4 — £970,000 • 12 bed • 10 bath • 4849 ft²
Shop for sale in West Bay, Bridport, Dorset, DT6 — £950,000 • 1 bed • 1 bath • 1551 ft²


























































































































