**Standout Features:**
- Large freehold Tudor Revival property with commercial viability
- Tenanted investment opportunity, yielding over 8% with tenant paying £1,850 PCM
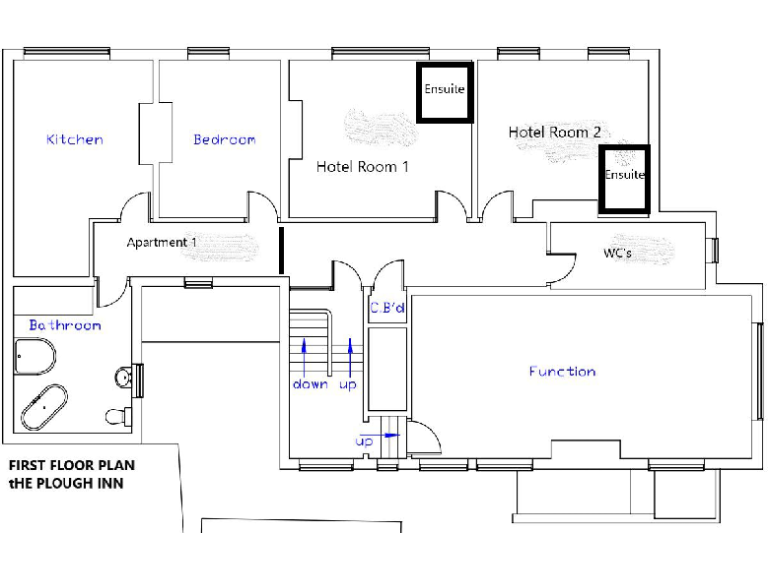
- Multiple income streams: lounge, sports bar, servery, commercial kitchen, two hotel rooms, and a self-contained 1-bed apartment
- Spacious function room accommodating up to 100 guests
- Enclosed beer garden and various outbuildings
- Excellent community location near local amenities and schools
- A lease with 3.5 years remaining on a five-year FRI term
This expansive freehold property represents an exceptional investment opportunity with a strong rental yield in a thriving community setting. The charming Tudor Revival design features large rooms with high ceilings and ample natural light, while a versatile layout supports a range of revenue-generating activities, from running a busy bar and restaurant to hosting private functions in the 100-person capacity function room.
With two hotel rooms and a self-contained one-bedroom apartment currently occupied by the chef, this property ticks many boxes for investors seeking steady returns or potential owners looking for a promising business venture. Please note the necessity for ongoing maintenance and the need to manage current tenant agreements. Located within a minor conurbation that boasts average crime rates and convenient local amenities, this interested buyer or investor would find a secure foothold in a lively village, close to reputable local schools. At an asking price of £275,000, this property is poised to attract those seeking real estate with growth potential and community engagement—not to be missed!
Pub for sale in Licenced Trade, Pubs & Clubs, Wroot, North Lincolnshire, DN9 — £349,995 • 2 bed • 1 bath • 958 ft²
Pub for sale in Yorkshire - Profitable Pub In Market Town Location, DN8 — £430,000 • 3 bed • 1 bath
Pub for sale in Yates, 58-59 Hall Gate, Doncaster, DN1 3PB, DN1 — £375,000 • 1 bed • 1 bath • 10996 ft²
Commercial property for sale in Chapel Lane, Conisborough, Doncaster, DN12 — £290,000 • 3 bed • 4 bath • 8086 ft²
Pub for sale in Licenced Trade, Pubs & Clubs, South Yorkshire, DN1 — £700,000 • 1 bed • 1 bath
High street retail property for sale in Hall Gate, Doncaster , DN1 — £375,000 • 1 bed • 1 bath • 10996 ft²






























































































