Substantial period freehold home with garden, parking and modern entertaining spaces..
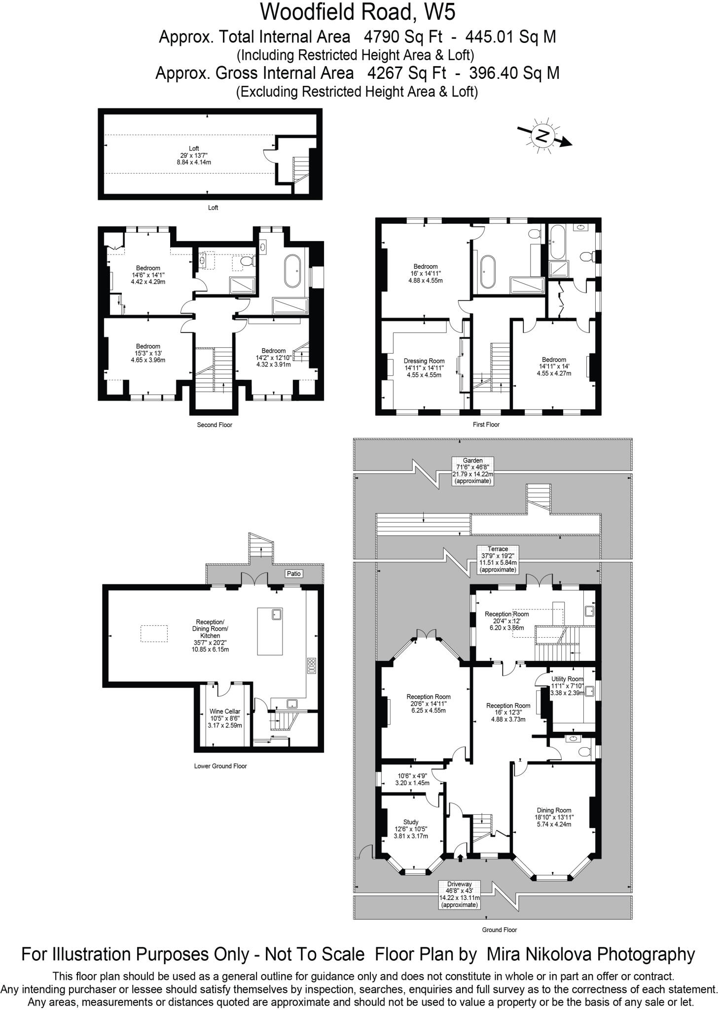
Spacious freehold Victorian-style detached house circa 4,790 sq ft
Five bedrooms including two principal ensuite suites
Large lower-ground open-plan kitchen/dining with premium appliances
Formal reception rooms, front office and bespoke rear bar area
Secure gated off-street parking for multiple vehicles; EV charging
Large multi-level terrace, lawned garden and outdoor barbecue kitchen
Built 1900–1929 with solid brick walls; insulation upgrades likely needed
Very expensive council tax band; ongoing maintenance costs expected
Set across approximately 4,790 sq ft on a gated plot in W5, this substantial Victorian-style freehold house offers enormous family flexibility. The ground and lower-ground floors combine formal reception rooms, a front office and a recently extended open-plan kitchen/dining area with high-spec appliances and a large wine cellar—ideal for entertaining or multigenerational living.
Upstairs accommodation includes two principal suites with ensuites and dressing facilities plus three further bedrooms and family bathrooms on the upper floors. High ceilings, bay windows and period mouldings retain character while contemporary fittings, double glazing and an EV charging point deliver modern convenience.
Externally the property benefits from secure off-street parking for several vehicles, gated frontage, a multi-level terrace and a well-maintained lawned garden with a dedicated seating area and outdoor barbecue kitchen—excellent for summer entertaining and private outdoor living.
Points to note: the house dates from the early 20th century and has solid brick walls (assumed uninsulated) so energy-efficiency upgrades may be required. Council tax is very expensive. Despite excellent condition, buyers should budget for occasional maintenance typical of large period homes and for any insulation or efficiency improvements they may wish to undertake.
7 bedroom detached house for sale in Park Hill, London, W5 — £4,950,000 • 7 bed • 6 bath • 5358 ft²
6 bedroom detached house for sale in Woodville Road, Ealing, W5 — £2,599,950 • 6 bed • 4 bath • 3000 ft²
5 bedroom detached house for sale in Celestine, Castlebar Road, Ealing, W5 — £3,250,000 • 5 bed • 5 bath • 4464 ft²
5 bedroom semi-detached house for sale in Egerton Gardens, West Ealing, Ealing, W13 — £1,750,000 • 5 bed • 3 bath • 2103 ft²
10 bedroom house for sale in Westbury Road, W5 — £12,750,000 • 10 bed • 6 bath • 10958 ft²
5 bedroom detached house for sale in Castlebar Road, London, W5 — £3,250,000 • 5 bed • 6 bath • 4464 ft²


















































































































































































