Chain-free freehold mixed-use with immediate uplift potential in Wallasey.
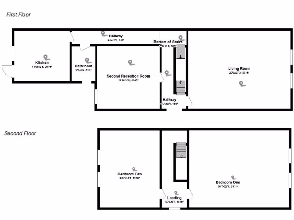
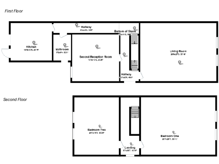
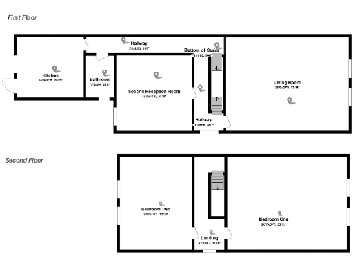
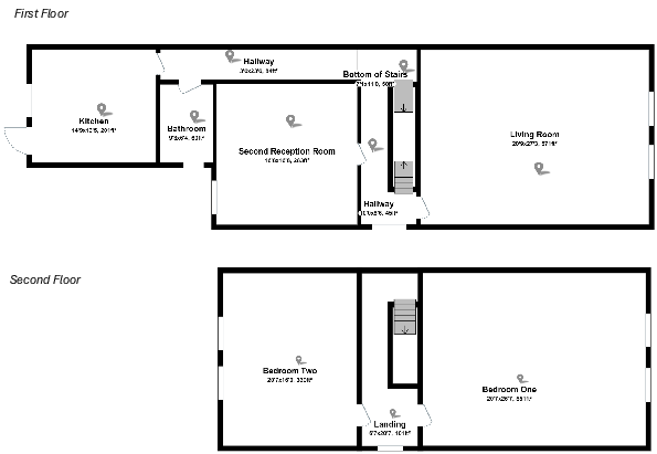
Freehold mixed-use property with ground-floor commercial and two-storey flat above
This freehold mixed-use property on Rake Lane offers a clear, income-focused opportunity for investors. The ground-floor commercial unit benefits from main-road frontage and visibility, while the two-storey self-contained flat above currently yields rental income below market; both units present scope to increase total returns.
Current rents are modest—residential £525 pcm and commercial £213 pcm—suggesting immediate uplift potential to market levels. The residential unit could achieve circa £700–£1,000 pcm after refurbishment or re-letting. Practical features include gas central heating, double glazing and a D-rated EPC, reducing immediate capital outlay for basic services.
Buyers should note the property's wider context: it sits in a deprived area with local classifications of "Hampered aspiration" and "Constrained renters," which may limit yield growth and tenant profiles. The plot is small and the building is Victorian terrace stock, so future improvements should be budgeted for; there is no reported flood risk. Chain-free sale and freehold tenure simplify purchase logistics.
Property for sale in Seaview Road, Wallasey, CH45 — £220,000 • 1 bed • 1 bath • 1725 ft²
Commercial property for sale in Mill Lane, Wallasey, CH44 — £155,000 • 4 bed • 2 bath • 1386 ft²
Commercial property for sale in Wallasey Road, Wallasey, Merseyside, CH44 — £180,000 • 3 bed • 2 bath • 1711 ft²
2 bedroom terraced house for sale in Poulton Road, Wallasey, Wirral, CH44 — £150,000 • 2 bed • 1 bath • 1400 ft²
Commercial property for sale in Upton Road, Wirral, CH46 — £195,000 • 1 bed • 1 bath • 1650 ft²
Commercial property for sale in Seaview Road, Wallasey, CH45 — £150,000 • 3 bed • 1 bath • 941 ft²














































































































