**Standout Features:**
- Prime investment opportunity in Emerson Park, Hornchurch
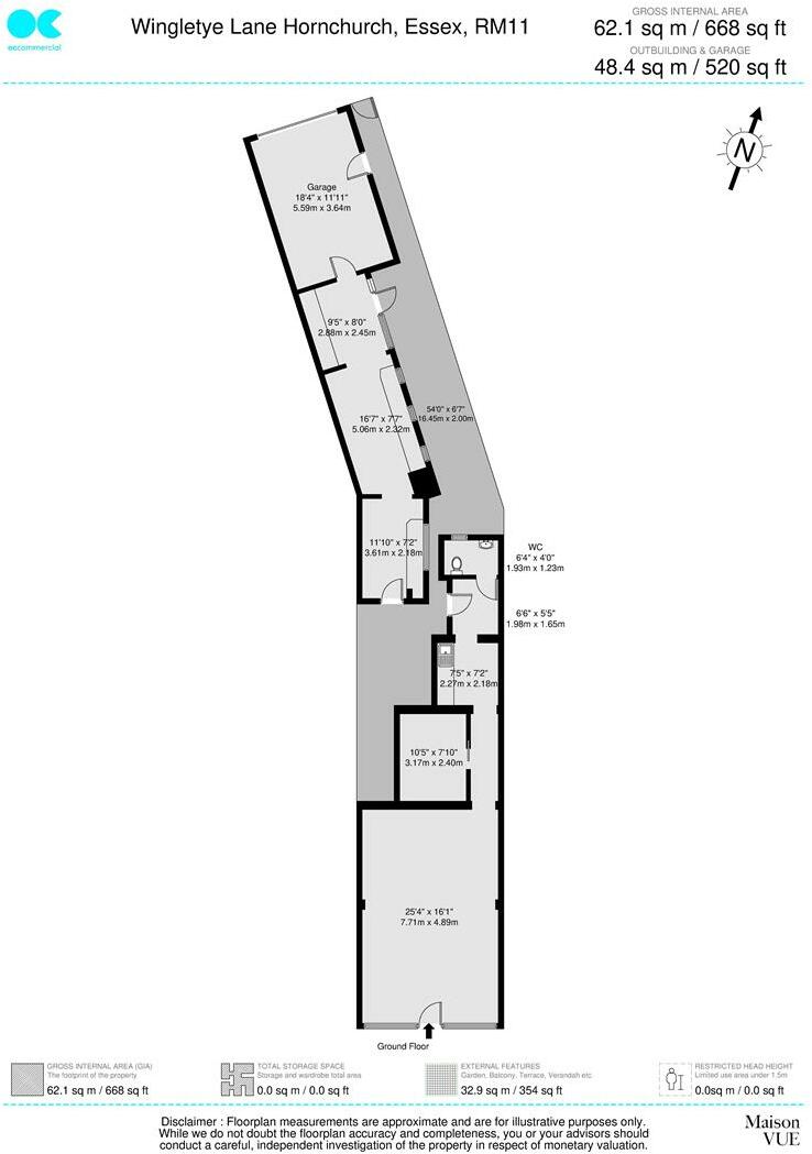
- Two-storey mixed-use building: ground floor commercial unit (1188 sqft) and first-floor flat (634 sqft)
- Approved planning for conversion to a bridal shop with potential extensions
- Potential gross income of £40,000 per annum
- Allocated parking and access to large garage/outbuilding
- Walking distance to Upminster Bridge Underground Station and Emerson Park Rail Station
- Chain-free and vacant possession
**Summary:**
Discover this exceptional investment opportunity in the sought-after Emerson Park area of Hornchurch. This two-storey mixed-use property features a spacious 1188 sq ft ground floor commercial unit, perfect for entrepreneurs with a vision, and a well-appointed two-bedroom flat on the first floor, providing comfort and convenience. The property boasts planning approval for transformation into a bridal shop, allowing for an exciting development pathway—ideal for savvy investors looking for versatility.
Situated just steps away from key amenities and transport links, the property also offers dedicated allocated parking and access to a sizeable garage/outbuilding. With great potential for a gross income of around £40,000 per annum, this chain-free gem presents a compelling opportunity for both first-time buyers and seasoned investors alike. Act fast—these prime locations don’t stay on the market long!
Commercial property for sale in Park Lane, Hornchurch, London, RM11 — £600,000 • 1 bed • 1 bath • 1431 ft²
High street retail property for sale in 144 & 144a, Hornchurch Road, Hornchurch, RM11 — POA • 1 bed • 1 bath • 2062 ft²
Commercial property for sale in High Street North, Manor Park, London, E12 — £750,000 • 3 bed • 2 bath • 1900 ft²
2 bedroom flat for sale in Menthone Place, Hornchurch, London, RM11 — £260,000 • 2 bed • 1 bath • 559 ft²
High street retail property for sale in 28 Station Lane, Hornchurch, RM12 6JR, RM12 — £335,000 • 1 bed • 1 bath • 806 ft²
High street retail property for sale in 123, Belgrave Avenue, Romford, RM2 — POA • 1 bed • 1 bath • 1211 ft²


























































































