**Standout Features:**
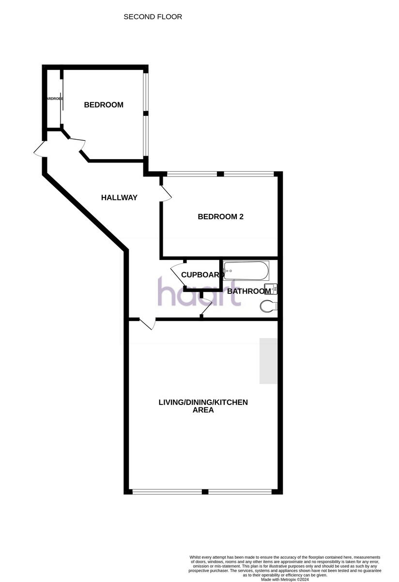
- Modern two-bedroom apartment on the second floor
- Views of historic Park Row and Greek Street
- Open plan living with ample natural light
- Stylish modern kitchen with integrated appliances
- Spacious double bedrooms; one with fitted wardrobe
- Prime city center location with excellent transport links
**Potential Concerns:**
- High service charge of £2,640 per annum
- Very high local crime rate
- Above average council tax band E
Discover urban living at its finest in this modern, two-bedroom apartment located on the second floor of a contemporary building on Park Row. Enjoy stunning views of historic Park Row and Greek Street while settling into a light-filled open plan living area that seamlessly blends the modern kitchen with the lounge, boasting integrated appliances and sleek design perfect for culinary enthusiasts.
Both double bedrooms offer practicality and comfort, with the main bedroom featuring a built-in wardrobe for convenient storage. The well-appointed bathroom, with a tranquil shower over bath setup, provides a relaxing oasis.
Ideal for first-time buyers and professionals, this apartment is perfectly situated in the heart of Leeds, surrounded by vibrant independent shops, cafes, and award-winning restaurants. With Leeds City Station just a five-minute walk away, commuting could not be easier, making it a prime investment opportunity.
However, be mindful of the high service charges, and the area’s elevated crime rate, especially if security is a priority for you. With 975 years left on the lease, this home presents solid future potential for rental or personal enjoyment. Don't miss the chance to own this fantastic urban retreat; opportunities like this in such a desirable location won't last long!
2 bedroom apartment for sale in Park Row, Leeds, LS1 — £190,000 • 2 bed • 1 bath • 851 ft²
1 bedroom apartment for sale in 14 Park Row, Leeds - LS1 — £170,000 • 1 bed • 1 bath • 601 ft²
1 bedroom apartment for sale in Park House Apartments, Park Row, LS1 — £146,250 • 1 bed • 1 bath • 635 ft²
1 bedroom apartment for sale in Park Row, Leeds, LS1 — £145,000 • 1 bed • 1 bath • 377 ft²
2 bedroom apartment for sale in 2 Crown Street, Leeds, LS2 — £167,000 • 2 bed • 1 bath • 679 ft²
1 bedroom flat for sale in Park Row, Leeds, LS1 — £145,000 • 1 bed • 1 bath • 697 ft²






































