Well-presented two-bedroom terrace near DVLA and M4, ideal for first-time buyers.
Two double bedrooms and lounge with dining area
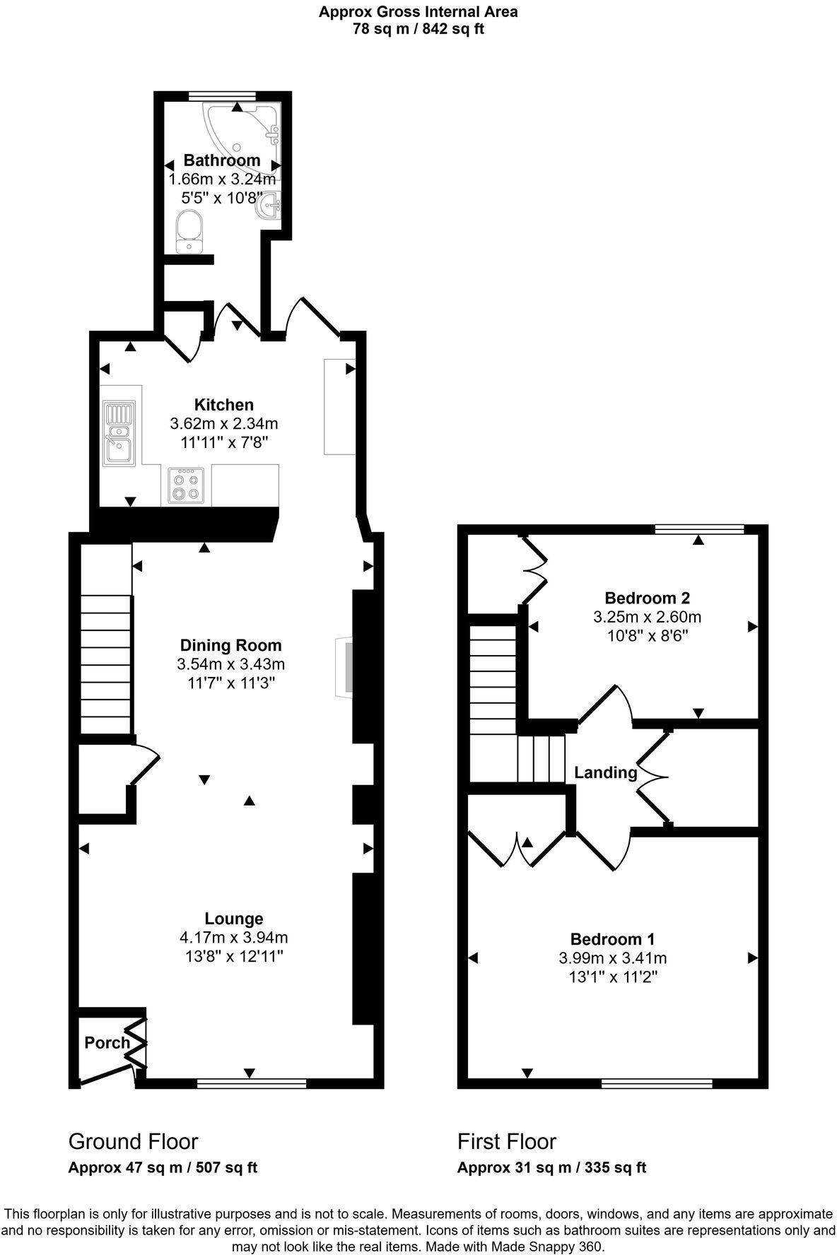
This well-presented two-bedroom terraced house in Morriston offers a practical, ready-to-move-in home for a first-time buyer. Set over two floors, the property features two double bedrooms, a lounge, dining area, fitted kitchen, and a bathroom. UPVC double glazing and a combi boiler provide modern-day convenience.
The house sits close to key local employers and transport links — DVLA, Morriston Hospital and the M4 are all nearby — making commuting and work access straightforward. The front patio benefits from scenic views, while the rear garden includes lawn and raised decking suitable for outdoor entertaining. At about 842 sq ft overall, the layout is compact but well organised.
Practical positives include freehold tenure, low council tax (Band B), no flood risk and excellent mobile and broadband connectivity. The home is presented to a good standard; a 360° tour is available for virtual viewing. This makes the property a sensible option for a first-time purchase or a buy-to-let investment.
Notable considerations: the surrounding area is assessed as very deprived, which may affect longer-term resale prices. The plot is small and the property is an average-sized terraced home, so outdoor space is limited. EPC is awaited; any energy-efficiency improvements should be factored in. Buyers wanting larger gardens or more space should note these constraints.
2 bedroom terraced house for sale in Trewyddfa Road, Morriston, Swansea, SA6 — £130,000 • 2 bed • 1 bath • 734 ft²
2 bedroom end of terrace house for sale in De La Beche Terrace, Morriston, SWANSEA, SA6 — £150,000 • 2 bed • 1 bath • 732 ft²
2 bedroom terraced house for sale in Clyndu Street, Morriston, Swansea, SA6 7BG, SA6 — £115,000 • 2 bed • 1 bath • 585 ft²
3 bedroom terraced house for sale in Bryneithin Terrace, Morriston, Swansea, SA6 — £190,000 • 3 bed • 2 bath • 941 ft²
2 bedroom terraced house for sale in Trewyddfa Road, Morriston, Swansea, SA6 — £150,000 • 2 bed • 1 bath • 999 ft²
2 bedroom terraced house for sale in Bartley Terrace, Plasmarl, Swansea, SA6 — £130,000 • 2 bed • 1 bath • 867 ft²






























































































