Extended four-bedroom detached house with vaulted garden room and south-westerly garden..
Four generous bedrooms, master with en-suite
Extended open-plan living/dining kitchen with vaulted garden room
South-westerly low-maintenance rear garden with astro-turf
Integral garage, driveway parking and EV charging point
Compact total size (936 sq ft) for four-bedroom accommodation
Freehold tenure; fast broadband but average mobile signal
Service charge £294 (below average) and above-average council tax
Located in a quieter, remoter village — limited immediate amenities
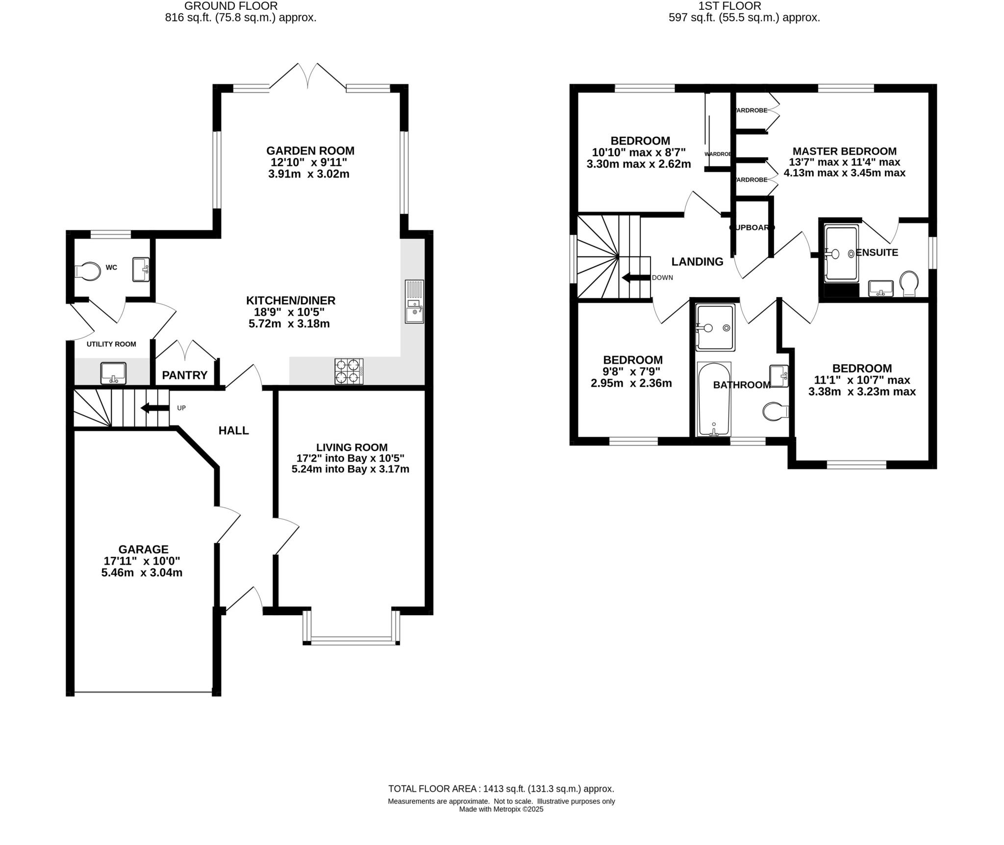
This well-presented four-bedroom detached house in Goostrey offers ready-to-move-in accommodation with practical, low-maintenance outdoor space. The home’s extended open-plan living/dining kitchen and vaulted garden room with Velux windows create a bright family hub facing south-west for afternoon and evening sun. Integrated appliances, a separate utility and pantry add everyday convenience.
At 936 sq ft, the layout is efficiently arranged but compact for a four-bedroom home; bedrooms are generous for the size, two with built-in wardrobes and the master with en-suite. The property includes an integral garage, driveway parking and an EV charging point at the garage, useful for modern family life.
The rear garden has been professionally landscaped with astro-turf, paved patio and raised beds for easy upkeep and year-round colour. Practical positives include fast broadband and freehold tenure, while the location sits in a quieter, more remote village setting — ideal for buyers wanting rural calm but meaning fewer local amenities on the doorstep.
Buyers should note the property’s modest total floor area (936 sq ft) for four bedrooms, an annual service charge of £294 and council tax at an above-average level. Mobile signal is average; outdoor space and sun aspect are strong selling points for families prioritising low maintenance gardens and flexible living space.
4 bedroom detached house for sale in Fieldside Close, Goostrey, CW4 — £750,000 • 4 bed • 3 bath • 1774 ft²
4 bedroom detached house for sale in Brooklands Drive, Goostrey, CW4 — £650,000 • 4 bed • 2 bath • 2275 ft²
4 bedroom detached house for sale in Brooklands Drive, Goostrey, CW4 — £650,000 • 4 bed • 2 bath • 2060 ft²
3 bedroom detached house for sale in Main Road, Goostrey, CW4 — £595,000 • 3 bed • 3 bath • 1797 ft²
4 bedroom end of terrace house for sale in Station Road, Goostrey, CW4 — £525,000 • 4 bed • 2 bath • 1518 ft²
3 bedroom detached bungalow for sale in Meadow Avenue, Goostrey, CW4 — £435,000 • 3 bed • 2 bath • 1263 ft²


















































































