**Standout Features:**
- Charming detached bungalow in Goostrey, Cheshire
- Generous private south-facing rear garden
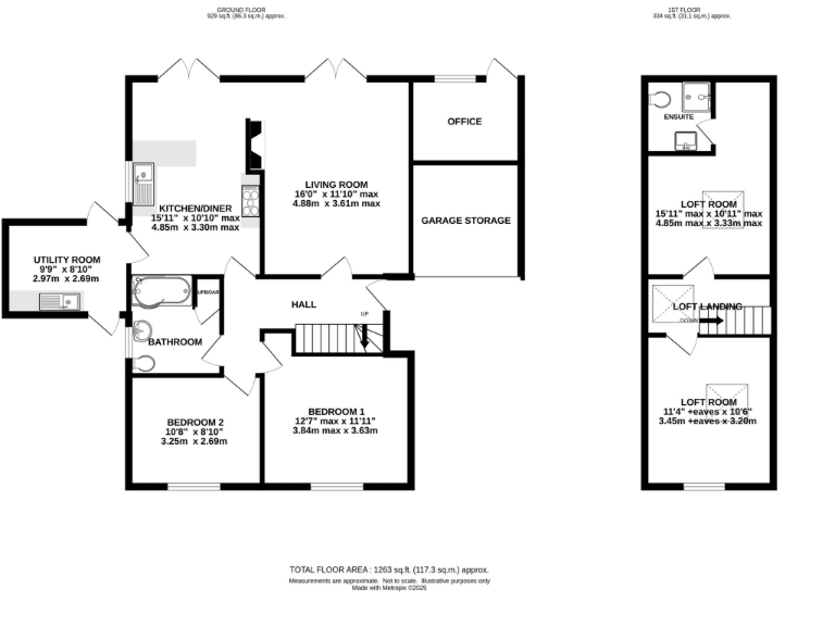
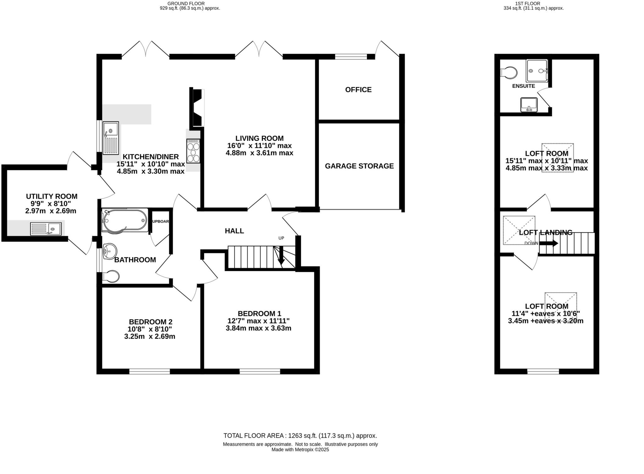
- Spacious living room and kitchen diner with French doors to the garden
- Two double bedrooms and bathroom on the ground floor
- Bright loft divided into two rooms, one with en-suite shower
- Garage with storage and potential office space
- Quiet, affluent area with excellent local amenities and schools
**Property Summary:**
Discover a beautifully presented detached bungalow in the sought-after village of Goostrey, offering both comfort and flexibility. This home boasts a spacious living room and a modern kitchen diner, both featuring French doors that seamlessly connect to an expansive sunlit south-facing garden—perfect for outdoor gatherings or tranquil retreats. The thoughtfully designed space includes two inviting double bedrooms on the ground floor, alongside a full bathroom and a functional utility room.
Upstairs, the loft area has been smartly divided into two light-filled rooms, complete with Velux windows; one can serve as a cozy office or additional guest space, complemented by an en-suite shower room. The property's garage not only provides ample storage but also has a section that’s been converted for use as an office or art studio, catering perfectly to remote workers or hobbyists.
Set against a backdrop of a vibrant and welcoming community, this home combines modern living with the charm of countryside life. With its attractive price point at £435,000 and options for personalization, this opportunity won't last long—perfect for families or first-time buyers seeking comfort, convenience, and a place to create lasting memories. Don’t miss your chance to make this gem your own!



















































































