Spacious family home with garage and garden, close to rail and schools.
Three-bedroom semi-detached villa over two levels
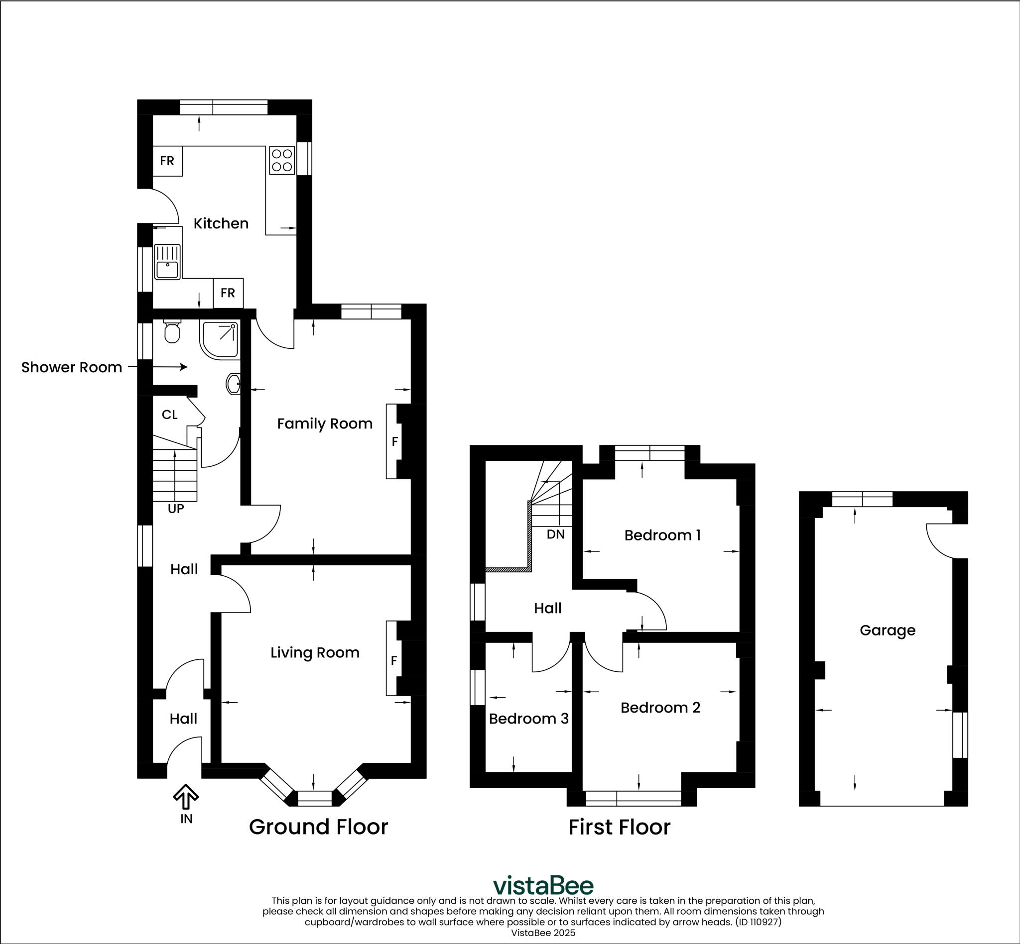
This traditional three-bedroom semi-detached villa in Kenmure Avenue offers spacious family living across two levels in a sought-after residential pocket of Bishopbriggs. The layout includes a welcoming vestibule, bay-fronted living room, separate dining/family room, kitchen with garden access, and a ground-floor shower room, with three well-proportioned bedrooms upstairs. Gas central heating and double glazing are in place for everyday comfort.
Outside, the property sits behind a generous driveway leading to a single garage and provides both front and rear gardens with lawn and patio — ideal for children and weekend gardening. The location provides direct access to Bishopbriggs centre, reliable rail and bus links to Glasgow, and nearby primary and secondary schools, making it practical for commuting families.
The house retains mid-20th century character such as a bay window and original fireplace but requires updating internally and some exterior maintenance. There is clear potential to refresh décor, modernise the kitchen and bathroom, and rework tiered landscaping to better suit outdoor living. Council tax is above average.
This freehold property suits buyers seeking a spacious family home with scope to add value through refurbishment, or those wanting immediate access to local amenities and transport. Note the mixed wider-area classifications provided — consider local factors and school catchments when assessing suitability.
3 bedroom semi-detached house for sale in Pollok Drive, Bishopbriggs, Glasgow, East Dunbartonshire, G64 — £275,000 • 3 bed • 1 bath
3 bedroom semi-detached house for sale in 26 Tweedsmuir, Bishopbriggs, Glasgow, G64 — £300,000 • 3 bed • 1 bath • 1006 ft²
2 bedroom semi-detached house for sale in Cander Rigg, Glasgow, G64 — £249,995 • 2 bed • 2 bath
3 bedroom semi-detached house for sale in Woodfield Avenue Bishopbriggs G64 1TY, G64 — £235,000 • 3 bed • 1 bath • 701 ft²
2 bedroom semi-detached house for sale in 14 Bardrill Drive, Bishopbriggs, , Glasgow, G64 — £220,000 • 2 bed • 2 bath • 971 ft²
3 bedroom semi-detached house for sale in 16 Bemersyde, Bishopbriggs, Glasgow, G64 — £270,000 • 3 bed • 1 bath • 807 ft²


















































