Bright rooms, large garden and major renovation potential near Sydenham centre.
Private rear garden with large scope for landscaping or extension (subject to consent)
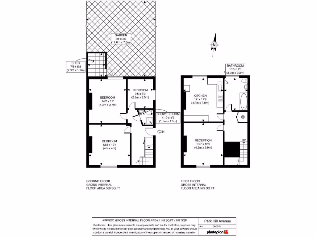
Own front door; split-level layout gives a house-like feel
Generous room sizes, high ceilings, original period character
Two bathrooms across the two floors, practical for family life
Requires renovation throughout; cosmetic and systems updating needed
Leasehold with 87 years remaining — consider lease extension costs
EPC rated D and likely low wall insulation; energy improvements advised
Local crime level is high; consider security measures
Set over two levels, this spacious three-bedroom period maisonette offers large rooms, high ceilings and a private rear garden in a quiet cul-de-sac just 200 yards from Sydenham’s hub. The split-level layout gives a house-like feel with its own front door, two bathrooms and generous room proportions that suit family living or a renovation project with strong uplift potential.
The property requires modernisation throughout — cosmetic and systems work will be needed to bring it up to contemporary standards. Built before 1900 with solid brick walls (likely uninsulated) and an EPC rating of D, improvements such as insulation, modern glazing and updating the kitchen and bathrooms will both increase comfort and add value.
Practical details: the flat is leasehold with 87 years remaining, mains gas central heating via boiler and radiators, no flood risk, average broadband and excellent mobile signal. Council tax band C is affordable, but note the local crime level is high, which buyers should factor in when assessing security measures and neighbourhood suitability.
For families or buyers seeking a period home to personalise, this is a rare opportunity to secure generous living space and a large private garden close to good schools and local amenities. With some work and a clear plan, the property could become a bright, characterful family home or a high-return renovation project.
3 bedroom flat for sale in Peak Hill Gardens, London, SE26 — £600,000 • 3 bed • 1 bath • 1149 ft²
4 bedroom maisonette for sale in Trewsbury Road, London, SE26 — £695,000 • 4 bed • 2 bath • 1981 ft²
3 bedroom maisonette for sale in Peak Hill Avenue, London, SE26 — £675,000 • 3 bed • 1 bath • 1250 ft²
2 bedroom maisonette for sale in Trewsbury Road, Sydenham, London, SE26 — £550,000 • 2 bed • 1 bath • 1522 ft²
2 bedroom maisonette for sale in Trewsbury Road, London, SE26 — £500,000 • 2 bed • 1 bath • 1016 ft²
2 bedroom apartment for sale in Kangley Bridge Road, Sydenham, London, SE26 — £300,000 • 2 bed • 1 bath • 458 ft²






























































