Rare riverside home with private quay access and excellent entertaining terrace.
Direct estuary-facing position with close-quarter water views
Set on one of Newton Ferrers’ most sought-after, no-through roads, this estuary-facing detached house offers daily water views and direct access to an outhaul mooring (subject to Harbour Master permission and licence). The principal bedroom occupies the upper level and looks directly over the river; a sun room and decked terrace create excellent indoor–outdoor flow for entertaining and enjoying tides and sunsets. The house sits on a sloping, terraced plot with well-planted borders and a recently constructed composite deck with glass balustrade.
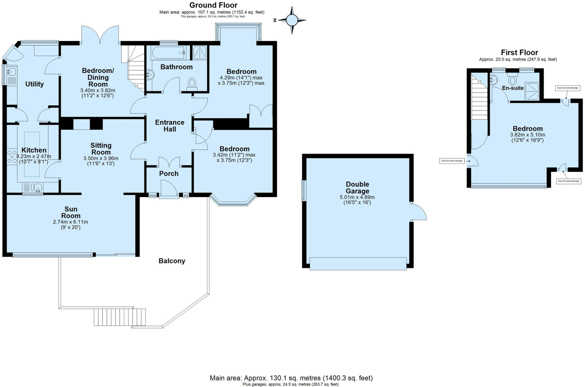
Accommodation is arranged over two floors and includes two well-proportioned reception rooms, a sun room, a kitchen with granite worktops and integrated Bosch appliances, a separate utility, and a flexible dining room/ground-floor bedroom. There are three/four bedrooms in total and two bathrooms, with the principal bedroom benefitting from an en-suite. Practical extras include a detached double garage with power and lighting, driveway parking for two and a low-volt EV charger.
Buyers should note the plot is sloping with terraced gardens and limited level lawn space; movement around the site involves steps and retaining walls. The right of way to the neighbour’s quay provides potential outhaul mooring use but is conditional on permission from the Harbour Master and an annual licence fee—purchasers must make their own enquiries. The property is well-located for village amenities, coastal walks and watersports, and offers scope for modernisation or an architect-led update (subject to planning).
This property will suit buyers seeking a lifestyle home by the water: those who prioritise estuary outlooks, easy access to sailing and riverside walks, and generous entertaining space rather than large, flat gardens. It presents a comfortable, characterful base in a very affluent, low-crime village setting with good local schools and strong community amenities.
4 bedroom detached house for sale in Church Park, Newton Ferrers, Devon, PL8 — £1,250,000 • 4 bed • 3 bath • 2725 ft²
2 bedroom flat for sale in Yealm Road, Newton Ferrers, PL8 — £495,000 • 2 bed • 2 bath • 943 ft²
4 bedroom semi-detached house for sale in Yealm Road, NEWTON FERRERS, South Devon, PL8 — £795,000 • 4 bed • 2 bath • 1322 ft²
4 bedroom detached house for sale in Yealm View Road. Newton Ferrers, Plymouth, Devon, PL8 — £2,000,000 • 4 bed • 5 bath • 2777 ft²
3 bedroom detached house for sale in Parsonage Road, Newton Ferrers, PL8 — £600,000 • 3 bed • 2 bath • 2118 ft²
4 bedroom house for sale in Cliff House, 95 Yealm Road, Newton Ferrers, Plymouth, Devon, PL8 — £850,000 • 4 bed • 1 bath • 2000 ft²






































































































