**Standout Features:**
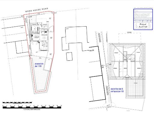
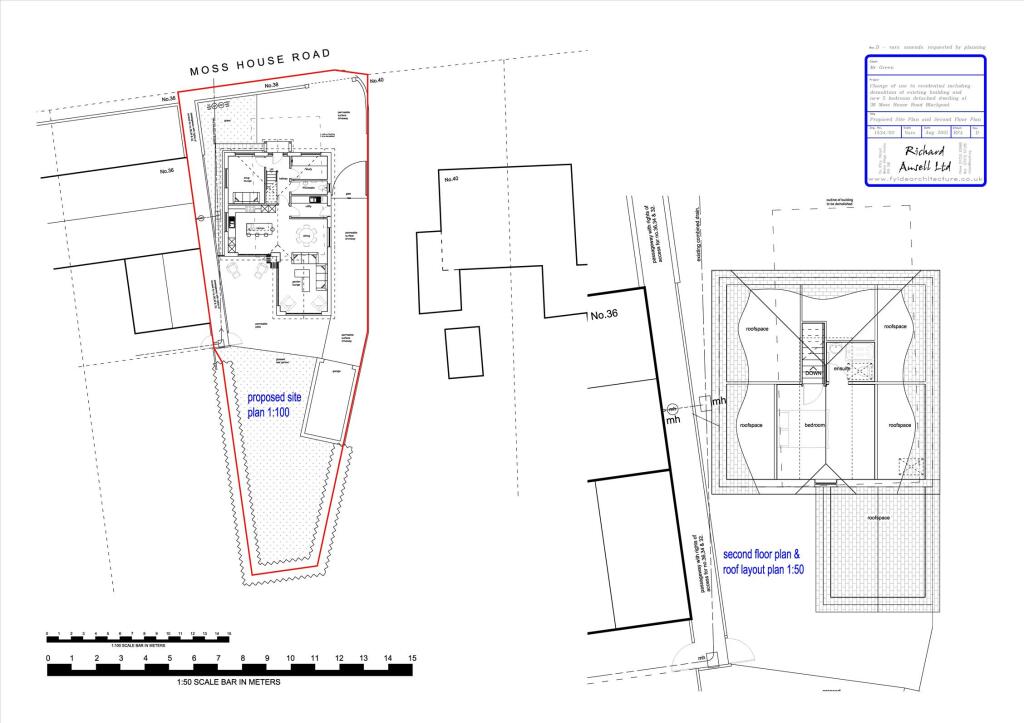
- Generous land plot with planning permission for a 4-5 bedroom detached house.
- Sought-after residential location with easy access to motorway links.
- Close proximity to high-rated schools and essential amenities.
- Low crime rate in the area, fostering a safe environment for families.
**Summary:**
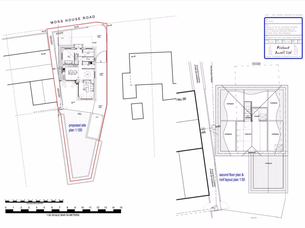
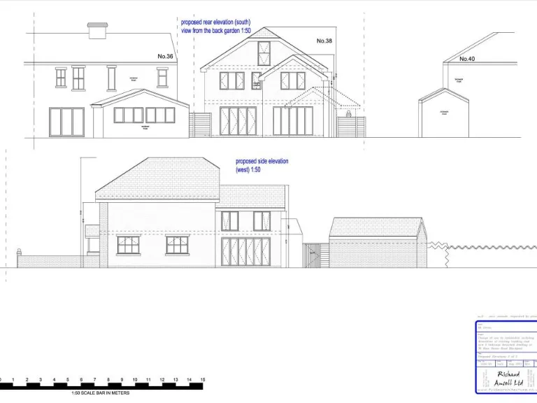
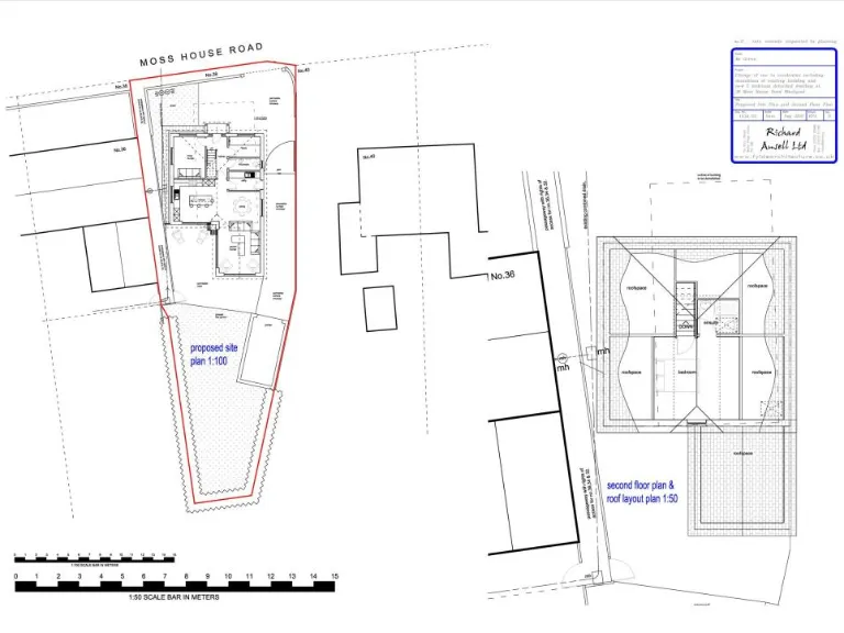
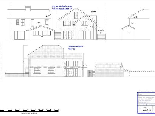
Discover an exceptional opportunity on Mosshouse Road, Blackpool with this substantial plot of land available for £110,000. Planning permission has been granted for a modern, spacious four to five-bedroom detached home, allowing you to craft your ideal family residence in a popular suburb. With low crime rates and top-rated schools, this location is perfect for families looking for community and comfort.
Imagine designing your dream home—from the contemporary brick exterior to the ample garden space, there’s potential for a personal oasis tailored to your lifestyle. The area is recognized for its accessibility via motorway links, making it convenient for commuters while maintaining a tranquil suburban atmosphere.
While the plot is currently raw land, the existing permissions and the neighborhood’s family-friendly charm offer remarkable future possibilities. Don't let this chance pass you by to create a bespoke sanctuary in a desirable location. Act quickly to avoid disappointment; opportunities like this are rare!
Land for sale in Moss House Road, Blackpool, FY4 — £300,000 • 1 bed • 1 bath
Land for sale in 235a Staining Road, Staining, Lancs FY3 0BW, FY3 — £109,950 • 3 bed • 1 bath • 1517 ft²
Land for sale in Mythop Gardens, Mythop Road, Lytham, FY8 — £350,000 • 1 bed • 1 bath
3 bedroom house for sale in 235a Staining Road, Staining, Lancs FY3 0BW, FY3 — £109,950 • 3 bed • 1 bath
Commercial development for sale in Residential Property With Land, Garages And Outbuildings, 14 Newton Drive East , Blackpool, Lancashire, FY3 — £329,000 • 1 bed • 1 bath • 20473 ft²
Land for sale in Virginia Cottage, Bennetts Lane, Blackpool, FY4 — £1,150,000 • 1 bed • 1 bath


















