**Key Features:**
- Magnificent detached stone farmhouse
- 67 acres of well-maintained land (Lot 1), with an additional 15 acres available (Lot 2)
- Character features combined with modern comfort
- Proximity to Skipton, Colne, and Manchester (approx. 1 hour drive)
- Expansive outbuildings and substantial stone barn with renovation potential
- Low crime area and excellent mobile signal, fast broadband
- Freehold property, chain-free sale, council tax band E
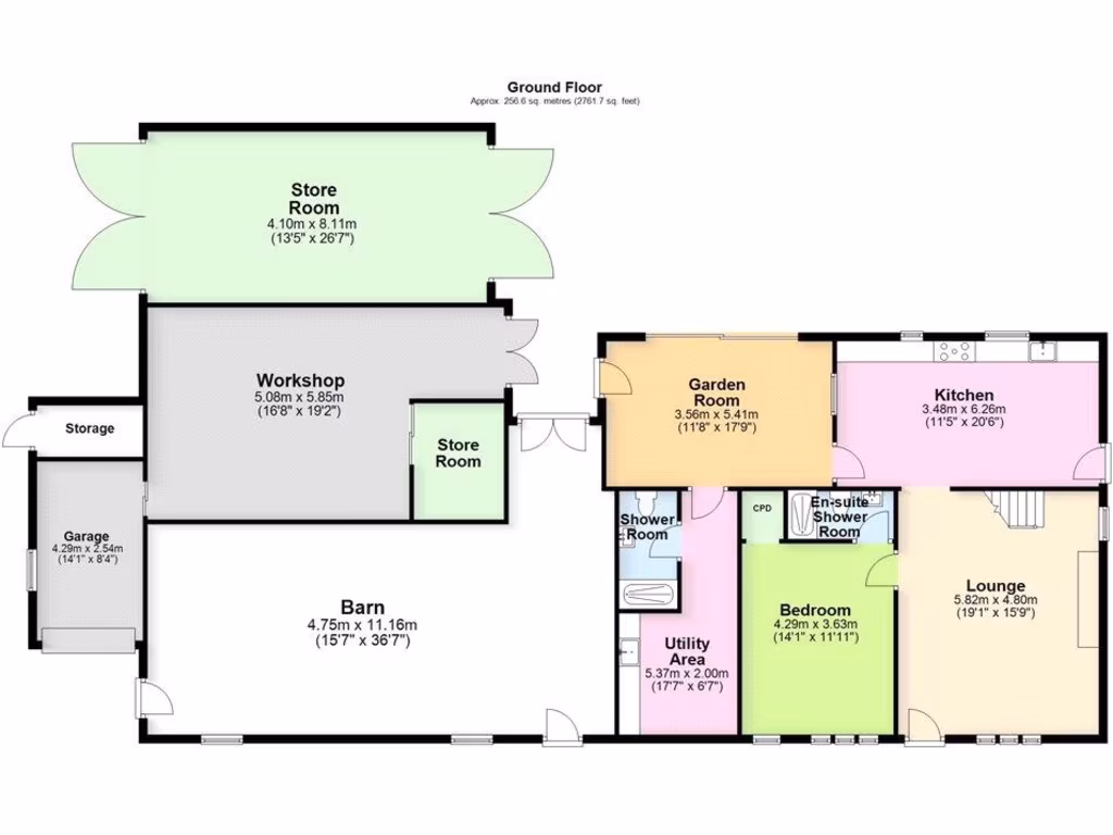
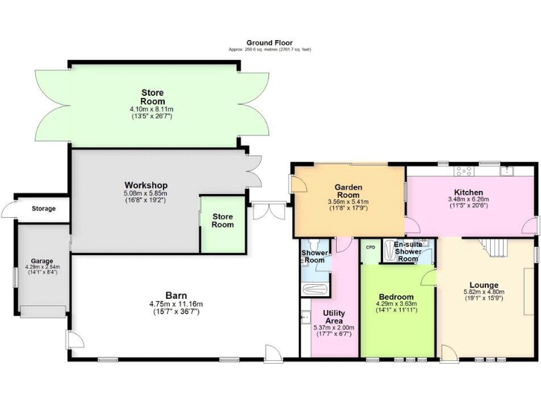
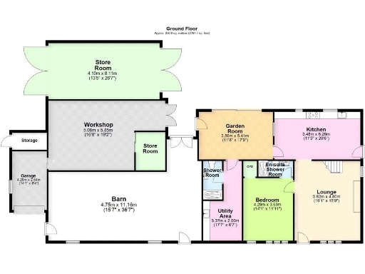
Discover the exquisite Kayfield Farm, a stunning detached stone farmhouse set in a serene rural backdrop, perfect for families seeking space and tranquility. This impressive property spans 1,782 square feet, offering three spacious bedrooms, three bathrooms, and a charming garden room that welcomes you into a warm and inviting kitchen and lounge, complete with a log burner for those cozy evenings. With a potential fourth bedroom in the attached barn and ample storage space throughout, this home presents extraordinary versatility for added accommodation or workspace.
The vast 67-acre grounds, comprising well-farmed permanent grassland and several agricultural buildings, provide an unprecedented lifestyle opportunity for both hobbyists and serious farmers alike. Extensive outbuildings add further development potential, making it ideal for various uses—whether you envision a thriving agri-business or simply wish to enjoy the beauty of rural life. Located only two miles from Barnoldswick's schools and amenities, Kayfield Farm beautifully balances secluded living with community conveniences. Don’t miss the chance to secure this unique property that blends character, comfort, and significant future potential—available as a whole or in two lots. Act quickly; opportunities like this are rare to find!
3 bedroom detached house for sale in Kayfield Farm (Lots 1 & 2), Salterforth Lane, Salterforth, Barnoldswick, Lancashire, BB18 6JD, BB18 — £1,400,000 • 3 bed • 3 bath • 1782 ft²
3 bedroom detached house for sale in Skipton Old Road, Laneshawbridge, BB8 — £850,000 • 3 bed • 3 bath • 1631 ft²
7 bedroom detached house for sale in Bashfield Farm, Kelbrook Road, Salterforth, Barnoldswick, BB18 5TG, BB18 — £895,000 • 7 bed • 3 bath • 2550 ft²
3 bedroom house for sale in Skipton Old Road, Colne, Lancashire, BB8 — £850,000 • 3 bed • 3 bath • 4714 ft²
5 bedroom farm house for sale in Overfields Farm, Long Hill End, Cowling BD22 0NR, BD22 — £599,950 • 5 bed • 1 bath • 1700 ft²
4 bedroom semi-detached house for sale in Cowling, North Yorkshire, BD22 — £625,000 • 4 bed • 2 bath • 2022 ft²


















































































































