**Standout Features:**
- Magnificent detached stone farmhouse set on 82 acres of productive land.
- Beautifully maintained with character, offering modern family comforts.
- Versatile property ideal for residential living, business potential, or farming.
- Extensive yard with substantial stone barn and agricultural storage buildings.
- Excellent connectivity, only 2 miles from Barnoldswick and about an hour's drive from Manchester.
- Available as a whole or in two lots for flexible purchasing options.
**Summary:**
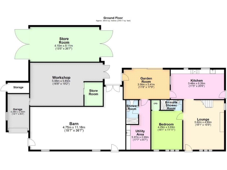
Introducing Kayfield Farm, a stunning detached stone farmhouse nestled in 82 acres of picturesque countryside, offering a unique blend of rustic charm and modern convenience. This exceptional property features three spacious bedrooms, three bathrooms, and a beautifully maintained interior packed with character. The expansive grounds include a substantial stone barn with renovation potential and ample agricultural storage space, making it an ideal fit for families seeking both comfort and opportunity for a rural lifestyle.
The farmhouse boasts large living spaces, including a garden room and a cozy lounge with a log burner, perfect for family gatherings. The first floor is highlighted by an enviable sitting room with breathtaking views of Malham Cove and Ingleborough. Outside, enjoy beautifully landscaped gardens and a safe, expansive area perfect for children and pets.
While the property is well-maintained, interested parties should be aware of potential renovations required for the outbuildings to maximize their use. Additionally, the property encompasses an agricultural land parcel ideal for livestock or hay production, offering significant income potential.
Whether you are looking for a peaceful family retreat or an investment opportunity, Kayfield Farm stands as an exclusive offering that won't be available for long. Don't miss out on the chance to embrace countryside living with room for growth and adaptability—schedule a viewing today to explore this remarkable property.
3 bedroom detached house for sale in Kayfield Farm (Lot 1), Salterforth Lane, Salterforth, Barnoldswick, Lancashire, BB18 6JD, BB18 — £1,250,000 • 3 bed • 3 bath • 1782 ft²
3 bedroom detached house for sale in Skipton Old Road, Laneshawbridge, BB8 — £850,000 • 3 bed • 3 bath • 1631 ft²
7 bedroom detached house for sale in Bashfield Farm, Kelbrook Road, Salterforth, Barnoldswick, BB18 5TG, BB18 — £895,000 • 7 bed • 3 bath • 2550 ft²
5 bedroom farm house for sale in Overfields Farm, Long Hill End, Cowling BD22 0NR, BD22 — £599,950 • 5 bed • 1 bath • 1700 ft²
3 bedroom house for sale in Skipton Old Road, Colne, Lancashire, BB8 — £850,000 • 3 bed • 3 bath • 4714 ft²
4 bedroom semi-detached house for sale in Cowling, North Yorkshire, BD22 — £625,000 • 4 bed • 2 bath • 2022 ft²


















































































































