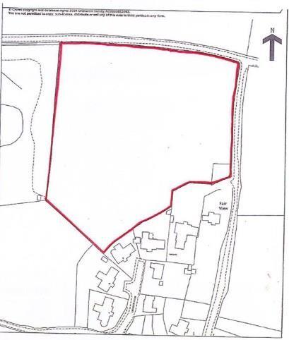
Productive level field with development potential, subject to planning and overage.
- Approximately 5 acres of level, well-fenced productive pasture
- Double gated road access with cattle handling pen
- No services connected; water not supplied on site
- Water and oil pipelines cross the land; easements likely apply
- Sold freehold with vacant possession; no entitlements included
- Overage clause: 40% uplift payable on residential planning gain (25 years)
- Close to Milford Haven amenities; rural hamlet setting
- Slow broadband and higher local area deprivation
A rare five-acre freehold pasture on the edge of Liddeston, offering productive grazing land within easy reach of Milford Haven. The field is level, well fenced with traditional hedgerows, and benefits from double gated access from a minor road — useful immediately as a pony paddock, grazing enclosure or amenity land.
There are no services connected and no water supply on site, although a public water main is believed to run nearby; purchasers should verify with Dŵr Cymru/Welsh Water. An oil pipeline and a water pipeline cross the land and will be subject to easements. The sale includes an overage clause: 40% of any uplift above the apportioned sale price if residential planning consent is granted, for 25 years, secured by a title restriction.
This parcel suits buyers seeking productive agricultural pasture or long-term development potential subject to planning. It is freehold with vacant possession available and no entitlements included. Note the local area scores higher deprivation and broadband speeds are slow; its rural setting is quiet and close to Milford Haven’s services and marina.
Land for sale in 15.88 acres of Land at Dreehill, Nr. Haverfordwest, SA62 — £160,000 • 1 bed • 1 bath
Land for sale in Moorland Road, Freystrop, Haverfordwest, SA62 — £38,000 • 1 bed • 1 bath
Land for sale in Hodgeston, SA71 — £330,000 • 1 bed • 1 bath
Land for sale in Shoals Hook Lane, Haverfordwest, SA61 — £750,000 • 1 bed • 1 bath
Land for sale in Hodgeston, SA71 — £175,000 • 1 bed • 1 bath
Land for sale in Acre Field, Golden Lane, Pembroke, SA71 — £40,000 • 1 bed • 1 bath














