**Standout Features:**
- Unique static houseboat of glass fibre reinforced plastic
- Spacious open-plan living area with fully fitted kitchen
- Two large bedrooms, easily convertible to three
- Luxurious shower room
- Stunning rooftop garden and sitting area with panoramic views
- Current use as an office, versatile for holiday rental, or creative living
- Option to relocate to Leigh Marina for coastal amenities
**Overview:**
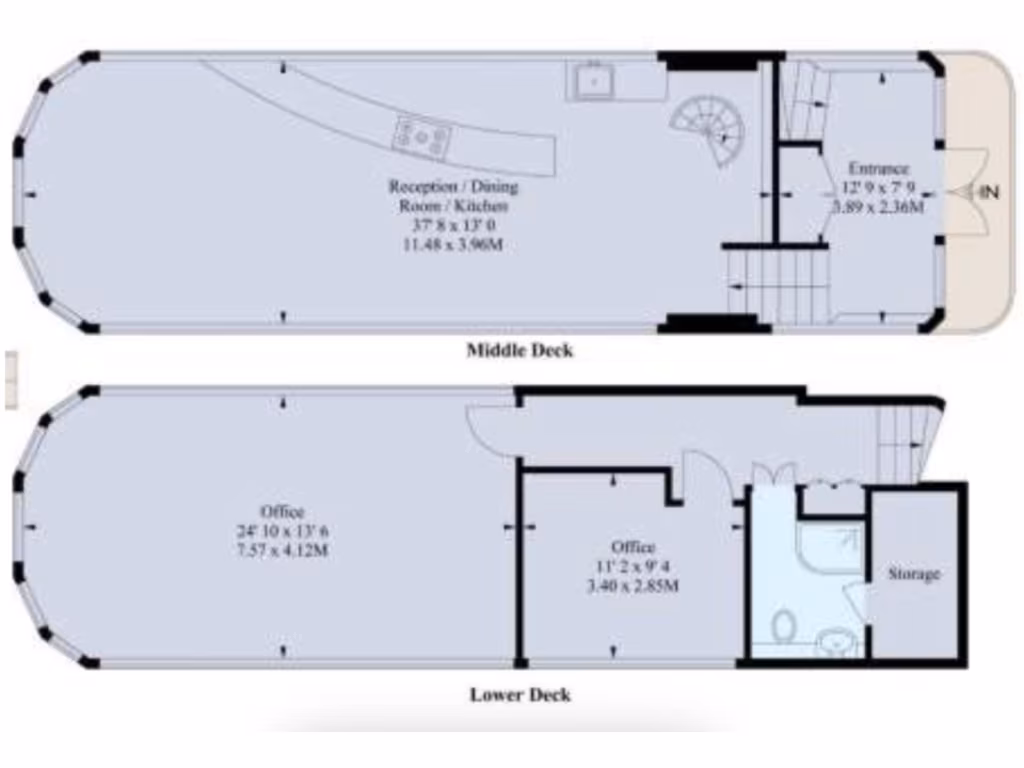
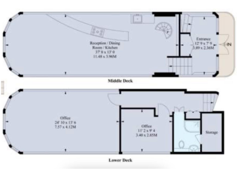
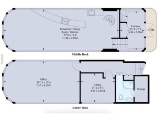
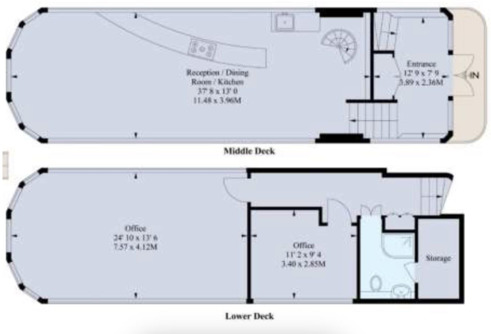
Discover a one-of-a-kind static houseboat moored in scenic Leigh Marina, offering a remarkable blend of contemporary design and potential. With its generous 1029 sq ft layout, this unique property features a spacious open-plan living area on the first floor, complete with a fully fitted kitchen. The lower level comprises two large bedrooms, which can be transformed into three, complemented by a luxurious shower room. The highlight is undoubtedly the fabulous rooftop garden, ideal for entertaining or simply enjoying the waterfront views.
Currently utilized as an office, this vessel holds great rental potential as a holiday home or a creative workspace for professionals. Convenient transport links and local amenities further enhance its appeal. While the average crime rate in the area is above average, the affluence and vibrant character of Leigh-On-Sea make it a desirable location. With its unique charm and versatile spaces, this houseboat represents an exceptional opportunity for those looking for an extraordinary lifestyle or a smart investment. Don’t miss your chance to own this extraordinary property!
3 bedroom house for sale in Point Road, Canvey Island, SS8 — £165,000 • 3 bed • 1 bath • 823 ft²
3 bedroom house boat for sale in Point Road, Canvey Island, SS8 — £170,000 • 3 bed • 2 bath
3 bedroom house boat for sale in Essex Marina, Wallasea Island, Rochford, Essex. , SS4 — £280,000 • 3 bed • 1 bath
3 bedroom house boat for sale in High Street, Leigh-On-Sea, Essex, SS9 — £165,000 • 3 bed • 1 bath
2 bedroom property for sale in Vicarage Lane, Hoo, Rochester, ME3 — £79,950 • 2 bed • 1 bath • 450 ft²
3 bedroom house boat for sale in Oyster Creek Marina, Point Road, Canvey Island, Essex, SS8 — £165,000 • 3 bed • 1 bath






































































