**Standout Features:**
- Guide Price: £200,000 - £220,000
- Beautifully presented 2-bedroom, 2-bathroom apartment
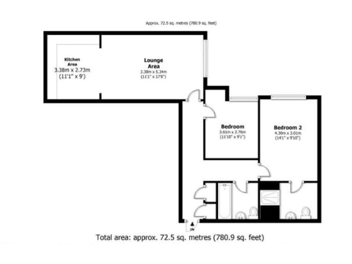
- Bright open-plan living space (780 Sq Ft) on the 5th floor
- Upgraded modern kitchen and bathrooms
- Chain-free with 136 years remaining on the lease
- Excellent transport links to London Bridge, Victoria, and Gatwick Airport
- Low crime rate in a vibrant, diverse area
- Nearby schools rated good to outstanding
This chic two-bedroom, two-bathroom flat offers a modern living experience in the lively area of Croydon. The spacious 780 square feet layout is designed for comfort, showcasing an inviting open-plan kitchen and reception that fills with natural light. Ideal for first-time buyers or investors, this property is chain-free and boasts a lengthy lease of 136 years, providing peace of mind.
With excellent transport links just a short walk away, you have quick access to central London. The property is surrounded by a variety of amenities, including shopping centers like Westfield Croydon, restaurants, and recreational parks, ensuring you enjoy both convenience and community.
Be aware of the above-average service charge of £5,400, but with the opportunity for future renovations and extensions, this apartment caters to those looking to invest and grow. Don’t miss out on this stylish apartment that perfectly balances comfort, modernity, and accessibility—viewings are highly recommended!
**Note**: Prospective buyers should conduct their own due diligence.
2 bedroom flat for sale in London Road, Croydon, CR0 — £230,000 • 2 bed • 1 bath • 699 ft²
2 bedroom apartment for sale in Park Lane, Croydon, CR0 — £225,000 • 2 bed • 1 bath • 858 ft²
2 bedroom flat for sale in St James's Road, Croydon, CR0 — £220,000 • 2 bed • 1 bath • 734 ft²
2 bedroom apartment for sale in 390 London Road, Croydon, CR0 — £290,000 • 2 bed • 2 bath • 791 ft²
2 bedroom apartment for sale in London Road, Croydon, CR0 — £230,000 • 2 bed • 1 bath • 808 ft²
2 bedroom apartment for sale in London Road, Croydon, CR0 — £270,000 • 2 bed • 2 bath • 661 ft²


































