Well-located, low-maintenance flat ideal for first-time buyers.
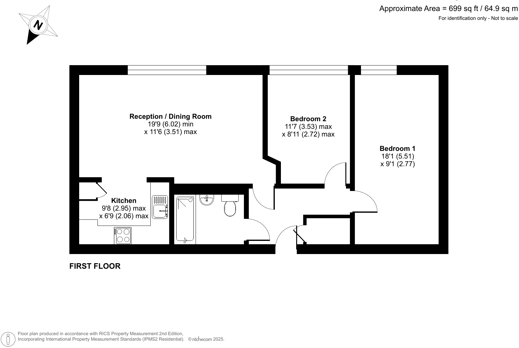
Two double bedrooms and a 19' lounge/diner, practical urban layout
Purpose-built first-floor flat with concierge and communal gardens
Total area approx 66sqm (699 sqft) — average-sized city apartment
Leasehold with 82 years remaining — check charges and ground rent
Community heating scheme; mains gas (community) supplied
Compact kitchen — functional but limited workspace
Excellent public transport links; close to West Croydon station
Area scores relatively deprived despite nearby good schools
Set on the first floor of a modern purpose-built block on busy London Road, this two-bedroom flat offers practical city living close to West Croydon station. The apartment provides a generous 19' lounge/diner, two double bedrooms and access to maintained communal gardens — good for outdoor space without private maintenance.
The building includes concierge and a community heating scheme, useful for convenience and predictable heating provision. At around 66sqm (699 sqft) the layout is a comfortable size for couples, sharers or first-time buyers seeking a well-located home with easy transport links and many nearby amenities.
Buyers should note the property is leasehold with 82 years remaining; prospective purchasers should check service charges and ground rent levels. The kitchen is compact and practical rather than expansive, and the wider area scores as relatively deprived, although local schools and public transport are strong highlights.
Overall this flat suits someone prioritising location and low external upkeep over private garden space. It presents immediate move-in potential with scope to update the kitchen or personalise finishes to add value.
2 bedroom flat for sale in London Road, Croydon, CR0 — £240,000 • 2 bed • 2 bath • 864 ft²
1 bedroom flat for sale in London Road, Croydon, CR0 — £200,000 • 1 bed • 1 bath • 486 ft²
2 bedroom flat for sale in Sanderstead Road, South Croydon, CR2 — £360,000 • 2 bed • 1 bath • 771 ft²
2 bedroom apartment for sale in London Road, Croydon, CR0 — £250,000 • 2 bed • 1 bath • 532 ft²
2 bedroom apartment for sale in London Road, Croydon, CR0 — £270,000 • 2 bed • 2 bath • 661 ft²
1 bedroom flat for sale in London Road, Croydon, CR0 — £180,000 • 1 bed • 1 bath • 507 ft²






















































