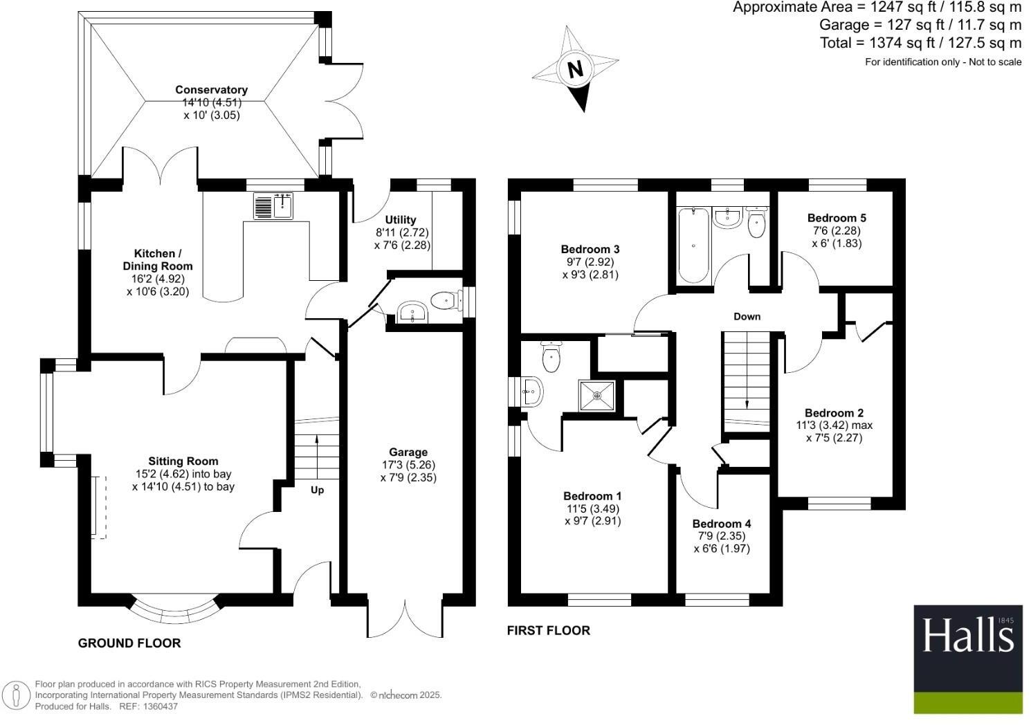
Five-bedroom family home on a low-maintenance corner plot near village schools.
Five bedrooms including principal with ensuite
Corner plot with tarmac off-road parking and single garage
Low-maintenance gravelled rear garden with two sheds
Double glazing throughout (installed before 2002)
Gas central heating with wall-mounted boiler in garage
Overall internal size modest for five bedrooms (~1,247 sq ft)
Council Tax Band F — relatively expensive running cost
Local area has higher deprivation indicators — consider wider context
This well-presented five-bedroom detached house sits on a corner plot in the popular village of Guilsfield, close to local schools, shops and community amenities. The layout suits a growing family: ground-floor lounge, kitchen/diner opening to a conservatory, utility and WC, with a principal bedroom and ensuite plus four further bedrooms upstairs. Off-road parking and a single garage add practical parking and storage.
The rear garden is gravelled for very low maintenance and includes two sheds — ideal if you prefer outdoor space with minimal upkeep. The property has double glazing and a gas boiler with radiators throughout. Constructed in the early 1990s, it offers solid family accommodation with scope for cosmetic updating to modern tastes.
Notable drawbacks are factual and important: internal living space is modest for a five-bedroom home (approximately 1,247 sq ft), the double glazing appears to pre-date 2002 and may not match current standards, and the single garage limits secure parking for larger families. Council tax sits at Band F, which will be a meaningful running cost. The property is located in a community classified with higher local deprivation indicators, so buyers should factor broader area considerations into their decision.
In short, this property will appeal to families seeking a ready-to-live-in, low-maintenance home in a village setting with good local schools, while buyers wanting larger rooms, modern glazing or more extensive outdoor landscaping should allow for targeted improvements.
3 bedroom bungalow for sale in Raylaw Avenue, Welshpool, SY21 — £265,000 • 3 bed • 2 bath • 1271 ft²
3 bedroom semi-detached house for sale in Rhoslan, Guilsfield, Welshpool, Powys, SY21 — £250,000 • 3 bed • 1 bath • 998 ft²
3 bedroom bungalow for sale in Oldcastle Avenue, Guilsfield, Welshpool, Powys, SY21 — £300,000 • 3 bed • 1 bath • 932 ft²
5 bedroom detached house for sale in Parc Hafod, Four Crosses, Llanymynech, Powys, SY22 — £460,000 • 5 bed • 3 bath
4 bedroom detached house for sale in Groes Close, Groesllwyd, Guilsfield, Welshpool, SY21 — £530,000 • 4 bed • 2 bath • 2645 ft²
4 bedroom detached house for sale in Groes Close, Guilsfield, SY21 — £525,000 • 4 bed • 2 bath • 2422 ft²






























































































