Bright two-bedroom property with generous open-plan entertaining and private outdoor space.
Newly renovated throughout with contemporary fixtures and finishes
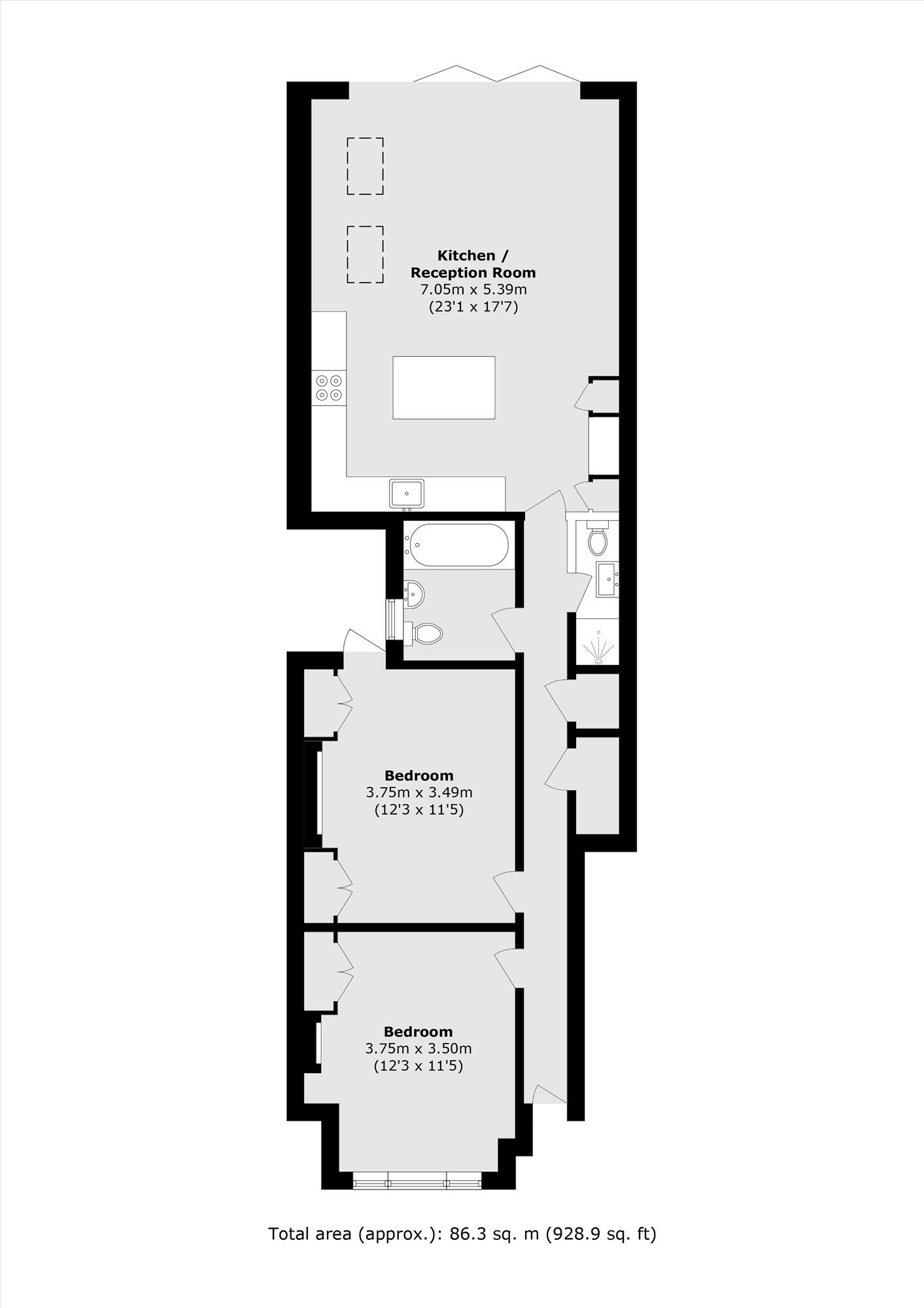
This newly renovated ground-floor maisonette combines Victorian character with a contemporary open-plan extension, making it ideal for a modern family. Two double bedrooms both include bespoke fitted wardrobes and there are two full bathrooms — convenient for household routines and guests. The kitchen/diner is a standout: a large island, skylight and full-width Crittall-style bi-fold doors create a bright entertaining space that flows out to a full south-facing private garden.
The property sits on a quiet, tree-lined residential street between Balham and Tooting Bec, with excellent transport links and highly regarded local schools close by. The share of freehold offers greater long-term control and the 928 sq ft layout provides generous principal rooms and storage for an inner-London home.
Practical points to note: the plot is small and external space is compact for the area, so garden maintenance and outdoor entertaining are on a modest scale. The plan is a long, linear layout with living space to the rear and bedrooms forward — useful for privacy but worth checking for natural light in the front rooms. Council tax band D applies. Overall this is a well-presented, move-in-ready family home in a sought-after location with genuine entertaining and outdoor appeal.
3 bedroom apartment for sale in Mantilla Road, SW17 — £825,000 • 3 bed • 2 bath • 1128 ft²
3 bedroom maisonette for sale in Franciscan Road, London, SW17 — £750,000 • 3 bed • 2 bath • 1154 ft²
4 bedroom maisonette for sale in Moring Road, Tooting, SW17 — £900,000 • 4 bed • 2 bath • 1461 ft²
3 bedroom maisonette for sale in Haverhill Road, Balham, SW12 — £900,000 • 3 bed • 2 bath • 1200 ft²
3 bedroom maisonette for sale in Midmoor Road, Balham, SW12 — £875,000 • 3 bed • 2 bath • 1104 ft²
2 bedroom maisonette for sale in Glenfield Road, LONDON, SW12 — £750,000 • 2 bed • 1 bath • 827 ft²






































