PR2 7DW - 3 bedroom end of terrace house for sale in Alder Grove, Pre…

View on Property Piper

3 bedroom end of terrace house for sale in Alder Grove, Preston, PR2

Summary - 27, Alder Grove,Ingol,PRESTON,PR2 7DW PR2 7DW

3 bed 2 bath End of Terrace

Compact 3-bed freehold with tenant in situ and immediate rental income..
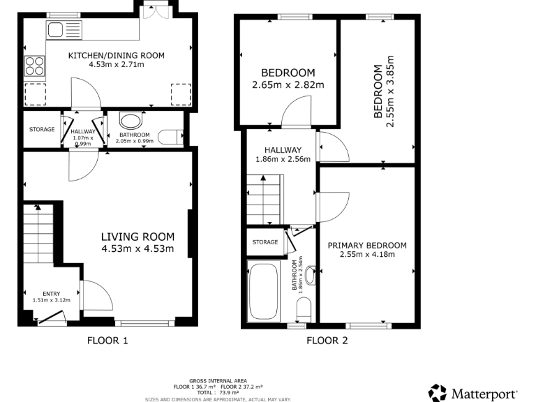
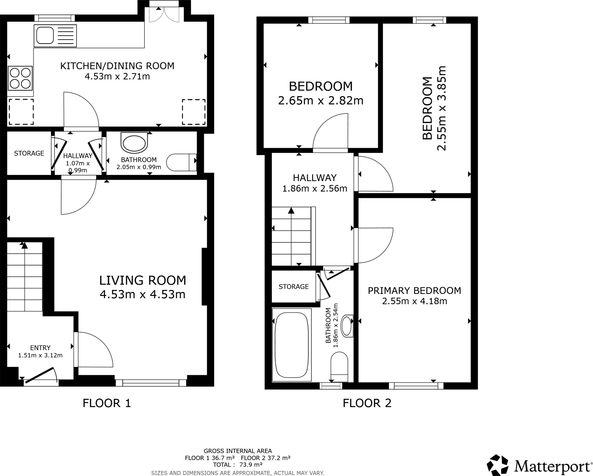
Three bedrooms with two bathrooms, lounge and kitchen/diner
A practical three-bedroom end-of-terrace on Alder Grove, offered with a sitting tenant and immediate rental income. The compact, two-storey layout includes a lounge, kitchen/diner, two bathrooms and a private rear garden, making it straightforward to manage as a buy-to-let or starter home.

The property is freehold and benefits from fast broadband and excellent mobile signal, with on-street parking nearby and good local schools and amenities. It currently produces an annual gross income of £8,100, so it will appeal to investors seeking an income-generating addition to their portfolio.

Buyers should note the house is small in overall floor area and sits in an area classed as deprived/hampered aspiration; this will affect capital growth prospects. The tenant has occupied the property for less than a year and intends to remain, so vacant possession is not immediate. A buyer's premium will be applied as part of the sale process.

This is a straightforward, low-maintenance investment or entry-level family home with clear income potential. Serious investors and developers attracted by rental returns should review the Let Property Pack and tenancy documentation before proceeding.

Property Details

Brochure Descriptions

Image Descriptions

Floorplan Description

Rooms

Textual Property Features

Target Audience

AI Tags

Detected Visual Features

Nearby Schools

Nearest Bars And Restaurants

,,,,}

Nearest General Shops

,,}

Nearest Grocery shops

,,}

Nearest Supermarkets

,,}

Nearest Religious buildings

,,}

Nearest Medical buildings

,,,}

Nearest Leisure Facilities

,,,,}

Nearest Tourist attractions

,,}

Nearest Train stations

,,,,}

Nearest Bus stations and stops

,,,,}

Nearest Hotels

,,}

Tags

Local Market Stats

Similar Properties

Meta

High Res Images

Compatible Images

Low res Images

Thumbnails

Raw Images

High Res Floorplan Images

Compatible Floorplan Images

Low res Floorplan Images

FloorplanImages Thumbnail

Raw Floorplan Images