Buy-to-let detached house with tenant in situ and immediate rental income..
- Freehold detached house on a large plot
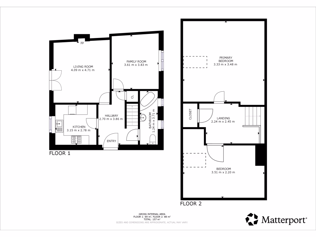
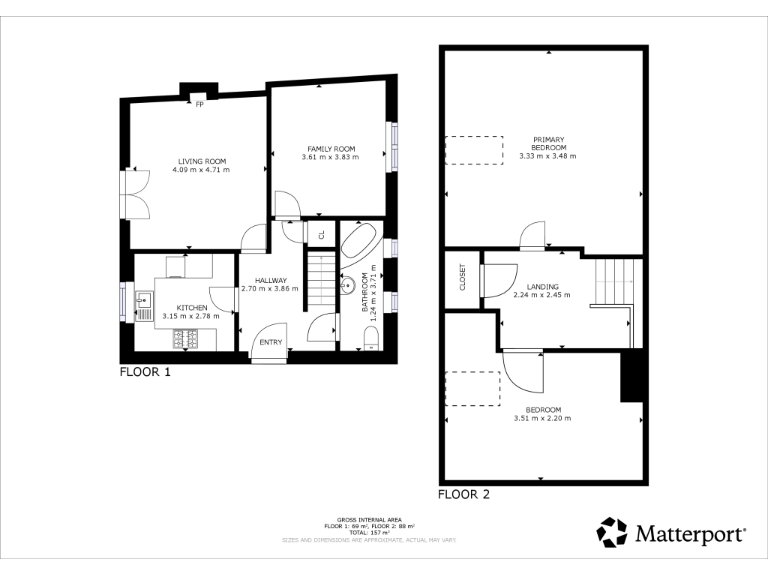
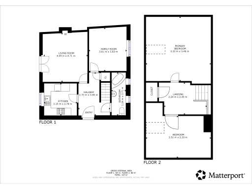
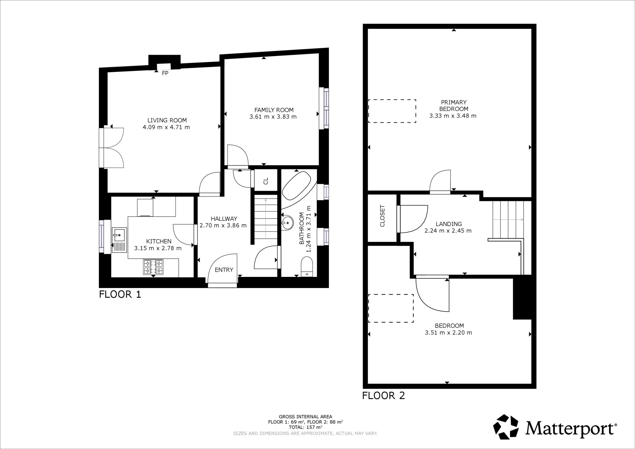
- Two bedrooms, two reception rooms, three-piece bathroom
- Gross annual rental income £10,500; tenant in situ
- Communal private parking plus off-street parking
- Private front and rear gardens
- Area classified as very deprived; social renting profile
- Buyer's Premium applies to the sale
- Recommended: full inspections and tenancy documentation review
A two-bedroom detached house on Ribbleton Avenue offered with a sitting tenant and immediate rental income. The property includes private front and rear gardens, communal private parking and off-street parking, and occupies a large plot. Internally there are two reception rooms, a kitchen and a three-piece bathroom across an average-sized 850 sq ft footprint.
This is presented primarily as a buy-to-let opportunity. It currently produces a gross annual income of £10,500 and the tenants have indicated they wish to remain, providing an investor with continuity of yield from day one. The freehold tenure and clear parking provision add practical appeal for rental management or future redevelopment.
Buyers should note the surrounding context: the property sits in a very deprived area with local classifications indicating social renting and hampered neighbourhoods. There is a Buyer's Premium applicable to the sale and the house is most likely to attract enquiries from serious investors and developers rather than owner-occupiers. While the exterior appears in reasonable condition, interested parties should review the Let Property Pack and carry out a full inspection and safety checks (electrical, gas, structural) before purchase.
For a portfolio investor this property offers immediate cashflow and potential for rent uplift or value-add refurbishment. For developers, the large plot and detached layout may present longer-term scope, subject to planning. The asset is best suited to buyers comfortable managing tenancy and turnover in an area with higher-than-average social housing and economic challenges.
3 bedroom end of terrace house for sale in Alder Grove, Preston, PR2 — £125,000 • 3 bed • 2 bath • 775 ft²
2 bedroom flat for sale in Bloomfield Grange, Preston, PR1 — £112,000 • 2 bed • 1 bath • 527 ft²
3 bedroom end of terrace house for sale in Butlers Meadow, Preston, PR4 — £167,000 • 3 bed • 1 bath • 904 ft²
3 bedroom terraced house for sale in Carr Street, PR5 — £115,000 • 3 bed • 1 bath • 807 ft²
3 bedroom terraced house for sale in Sephton Street, Preston, PR5 — £120,000 • 3 bed • 1 bath • 764 ft²
3 bedroom terraced house for sale in Butlers Meadow, Preston, PR4 — £170,000 • 3 bed • 1 bath • 904 ft²


















































































































