Quiet central flat with private outdoor space close to Victoria.
Spacious reception with high ceiling and period character
Private patio and garden flat—rare central outdoor space
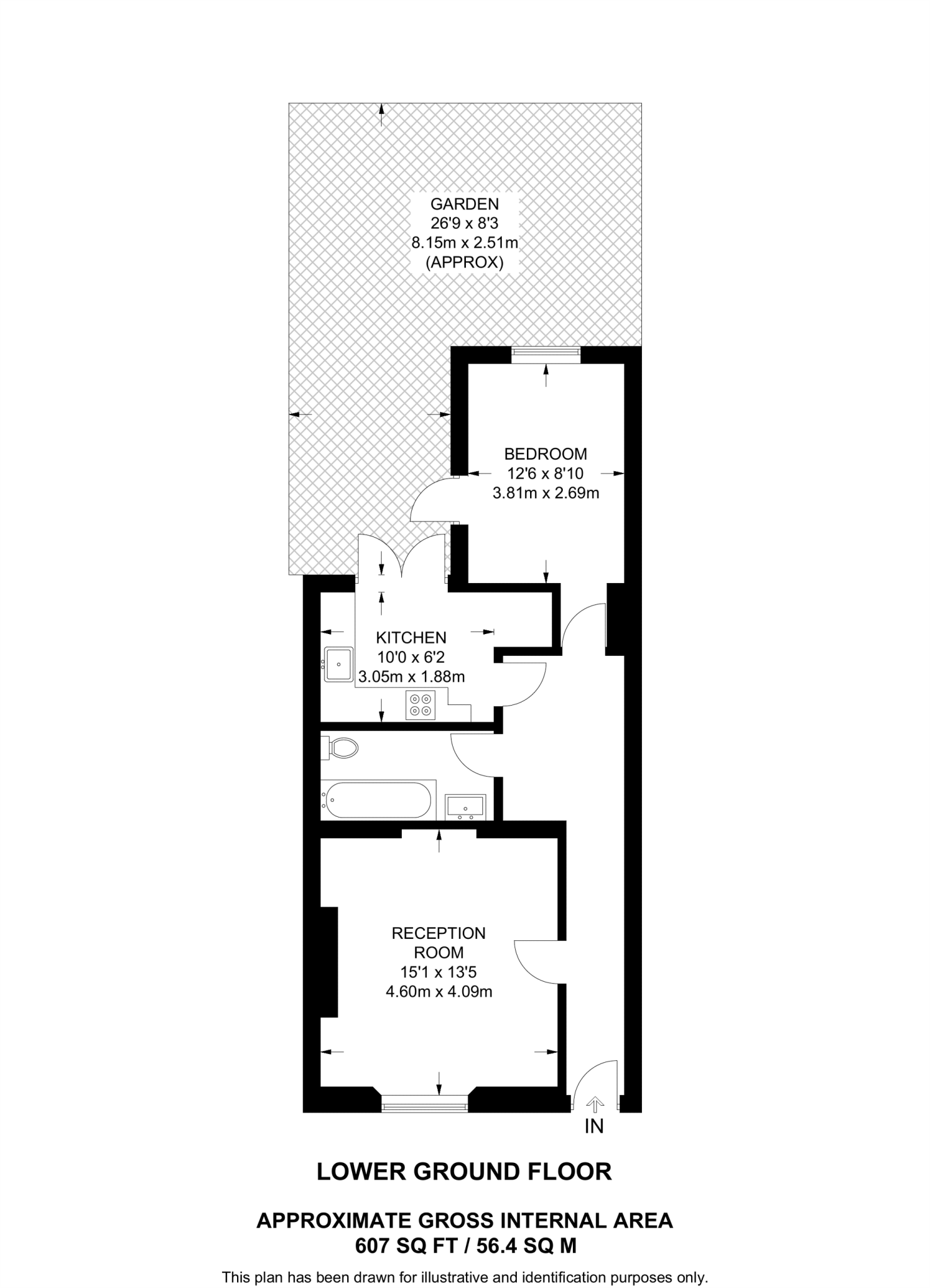
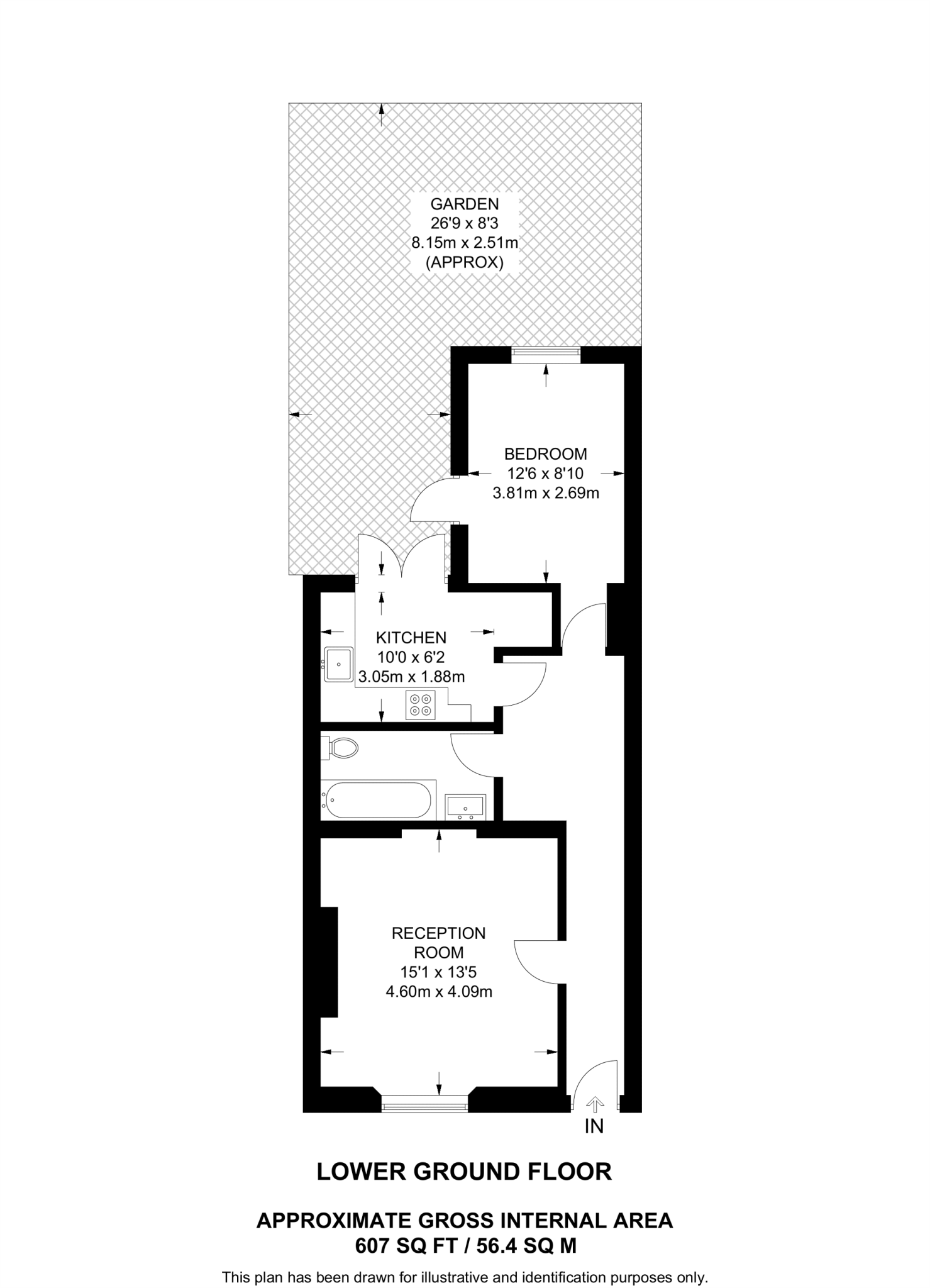
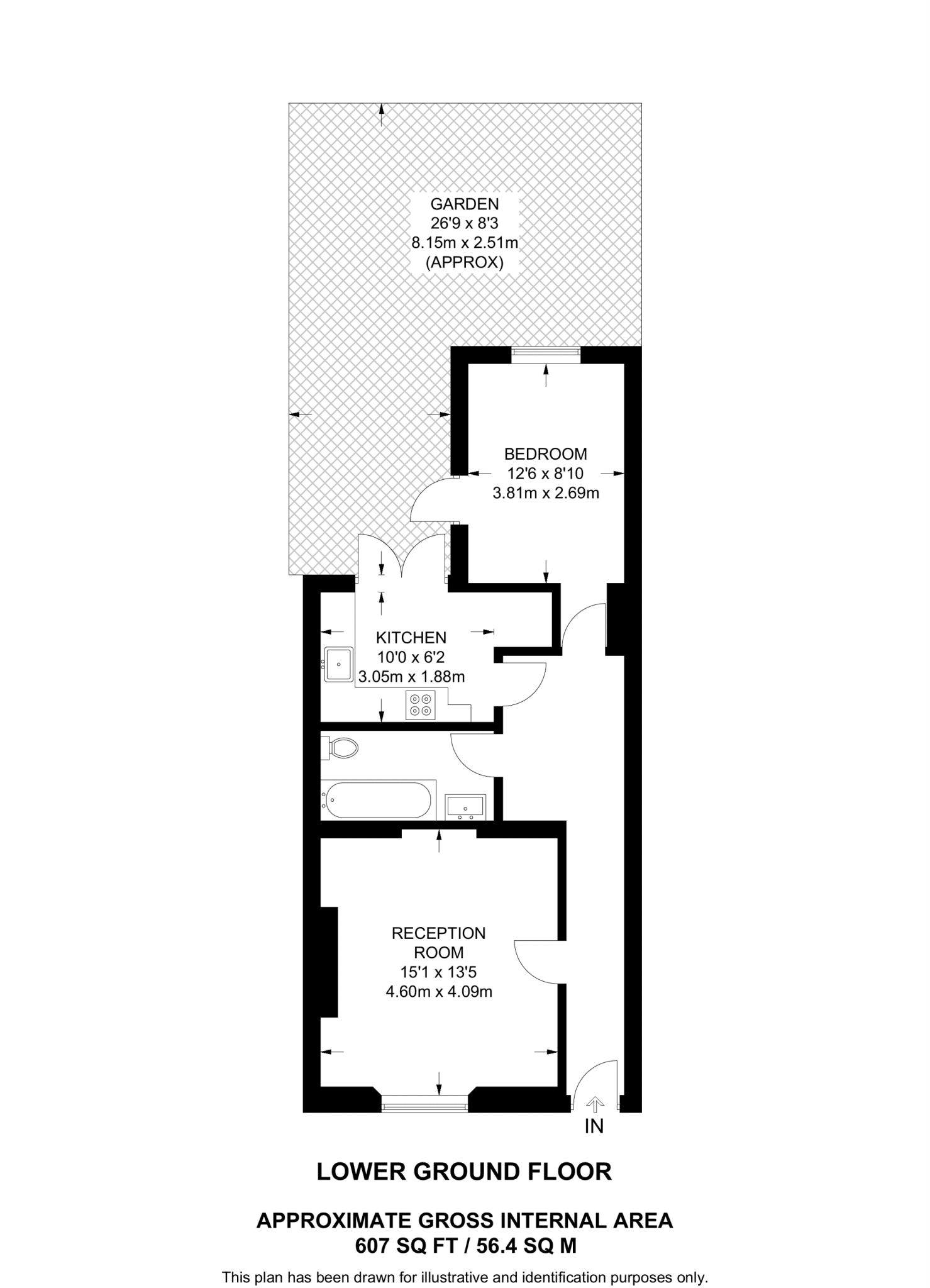
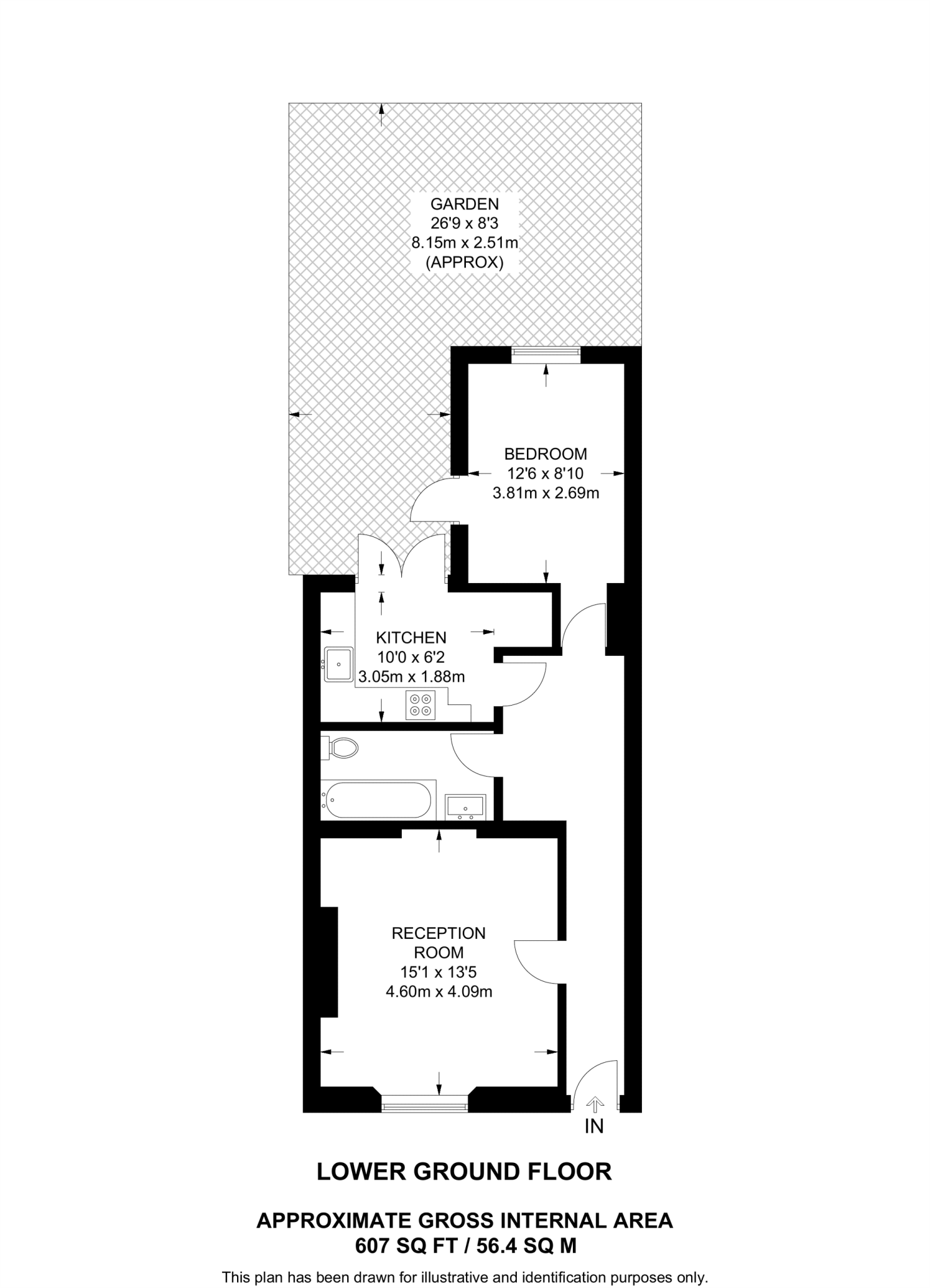
About 607 sq ft; generous one-bedroom layout
Long lease (898 years) gives ownership security
Modern kitchen and well-presented interiors throughout
Service charge approx. £2,434 (average) — budget accordingly
Solid brick walls assumed; may lack insulation and need upgrading
Sold at auction (prior purchase available) — sale terms apply
Light‑filled garden flat in Pimlico offering practical space and classic Victorian character. Set on Cambridge Street, this one‑bedroom, one‑bath home occupies about 607 sq ft and benefits from a long lease (898 years) and a private patio — rare for central London flats. The reception room feels generous thanks to high ceilings, and a modern kitchen is ready for everyday use.
This property will be sold at auction with prior purchase available, which can suit buyers who want a quicker, competitive process. Running costs are straightforward: mains gas boiler and radiators provide heating, and broadband and mobile signals are strong in this inner‑city location. The building dates from before 1900 and retains solid brick construction, bringing period appeal alongside modernised interiors.
Be aware of the practical downsides: the flat is leasehold, with an average service charge around £2,434, and the walls are assumed to be uninsulated brick, so energy efficiency could be limited without further work. For buyers seeking a central, walkable address within easy reach of Victoria and Belgravia, this offers a manageable one‑bedroom home with outdoor space and good potential for short‑term rental or first‑time ownership.
Studio flat for sale in Alderney Street, London, SW1V — £385,000 • 1 bed • 1 bath • 405 ft²
1 bedroom flat for sale in Alderney Street, Pimlico, London, SW1V — £385,000 • 1 bed • 1 bath • 405 ft²
2 bedroom flat for sale in Alderney Street, Pimlico, London, SW1V — £800,000 • 2 bed • 2 bath • 728 ft²
1 bedroom flat for sale in St Georges Square, Pimlico, London, SW1V — £700,000 • 1 bed • 1 bath • 781 ft²
1 bedroom flat for sale in Alderney Street, Pimlico, London, SW1V — £500,000 • 1 bed • 1 bath • 447 ft²
3 bedroom flat for sale in Causton Street, Westminster, London, SW1P — £775,000 • 3 bed • 1 bath • 867 ft²






















































































































































































