Private patio and high-ceiling reception near Victoria station.
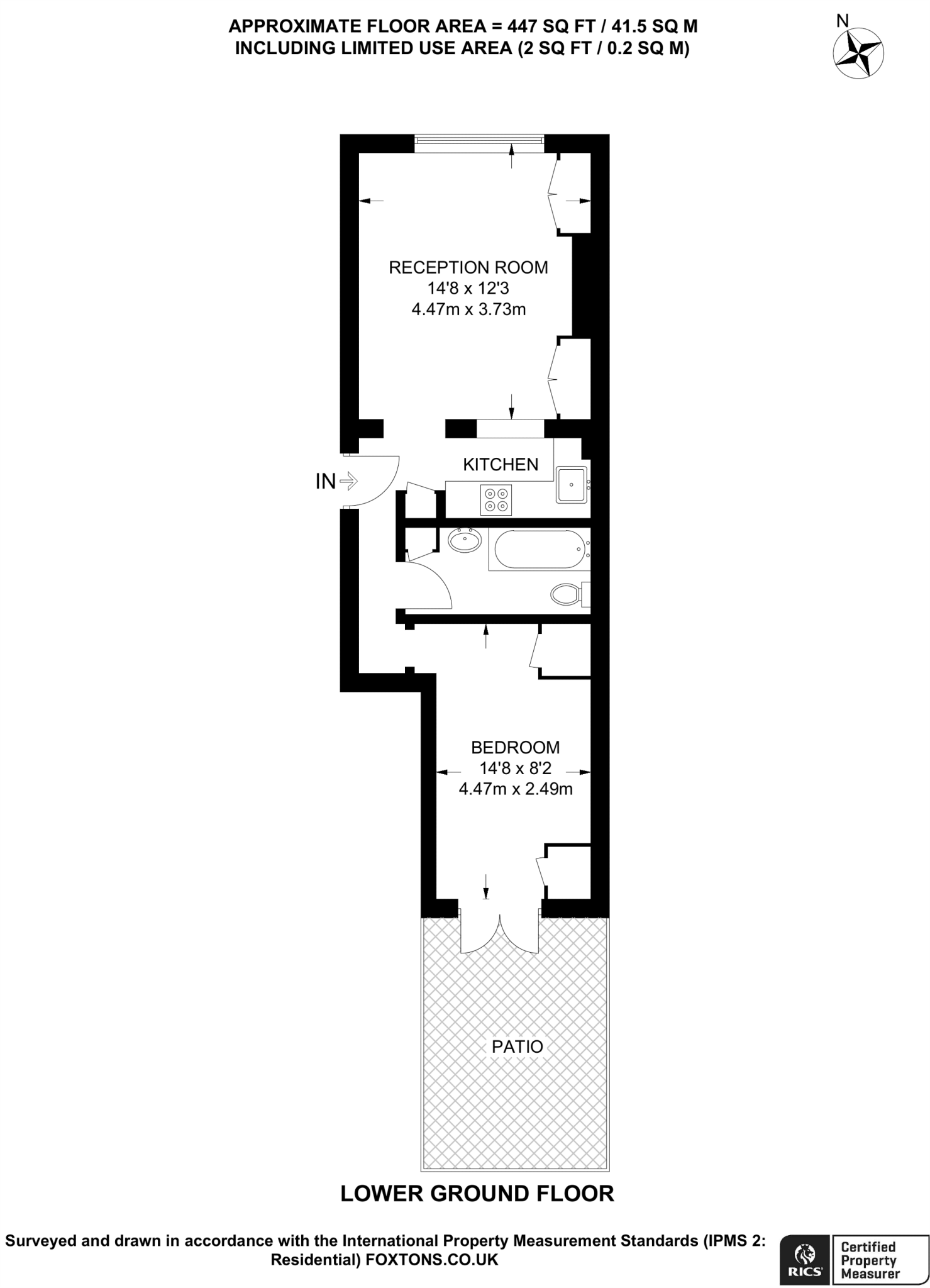
Lower-ground one-bedroom with private Victorian brick patio
A well-presented lower-ground one-bedroom flat in SW1V, offering light-filled living with period character and modern fittings. The reception room benefits from a high ceiling and wooden floors, creating an airy living space that links well to a contemporary kitchen. The bedroom is generous for the size and opens directly onto a private Victorian-style brick patio — a rare outside space in central Pimlico.
The building is a traditional mid-terrace constructed before 1900 and is sold as a share of freehold. Heating is by mains gas boiler and radiators, and the windows are double glazed (install date unknown). Service charges are modest at £720 a year.
Practical points to note: the flat is lower-ground, so natural light is more limited than upper floors; the property sits within a solid-brick building with assumed no cavity insulation. Crime levels in the area are above average for London, though transport links are excellent — Victoria Station is within walking distance, with local cafes, shops and schools close by.
This home will suit a first-time buyer or city professional seeking central Pimlico living with outdoor space and character, and it offers straightforward cosmetic or insulation upgrades for long-term value enhancement.
1 bedroom flat for sale in Alderney Street,
Pimlico, SW1V — £500,000 • 1 bed • 1 bath • 471 ft²
1 bedroom flat for sale in St Georges Square, Pimlico, London, SW1V — £700,000 • 1 bed • 1 bath • 781 ft²
1 bedroom flat for sale in Cambridge Street, Pimlico, London, SW1V — £550,000 • 1 bed • 1 bath • 607 ft²
1 bedroom flat for sale in Alderney Street, LONDON, SW1V — £500,000 • 1 bed • 1 bath • 524 ft²
1 bedroom flat for sale in Winchester Street, Pimlico, SW1V — £645,000 • 1 bed • 1 bath • 650 ft²
1 bedroom flat for sale in Belgrave Road, London, SW1V — £487,500 • 1 bed • 1 bath • 596 ft²


























































































































































































































































































