Ready‑documented brownfield scheme near Mossley, designed for family housing.
Full planning consent for 55 homes granted 13/07/2020
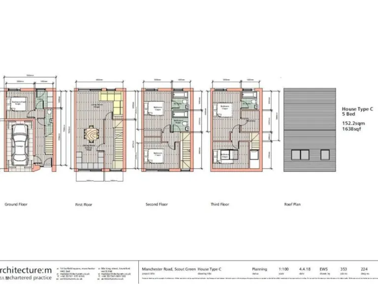
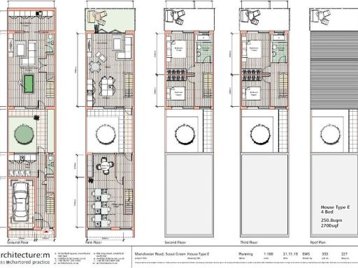
A large brownfield opportunity with full planning consent for 55 houses across 2.22 acres, already designed to deliver a mix of 2-, 3- and 5‑bed family homes with 74 parking spaces. The consent (App. 19/00264/FUL, decision 13/07/2020) includes detailed technical reports and bridge engineering drawings to enable site access from Manchester Road. Planning documents and the S.106 agreement are available for review.
The site sits between the Huddersfield Canal and River Tame, close to Mossley and Stalybridge with good motorway links. Mains services are available, and the house types range from 732 sq ft 2‑beds up to 2,700 sq ft 5‑beds, giving scope for a sizeable residential scheme aimed at families and owner‑occupiers.
Buyers should note material obligations: an existing S.106 agreement and new bridge works are part of the consent, and contaminated land reports and mitigation measures are on file. The site carries a medium flood risk and detailed Flood Risk and ecology assessments (including otter and vole surveys) are provided.
Offers around £2,000,000 are invited, VAT is understood not to be payable, and the site is freehold (Title MAN247518). This is best suited to a developer or investor able to manage remedial works, deliver the bridge/access and progress the approved scheme to completion.
Land for sale in Bitannia Mill Site, Mossley, Ashton-under-Lyne, OL5 — £4,400,000 • 1 bed • 1 bath
Land for sale in Rochdale Old Rd, Bury - Land With Planning For 5 Homes, BL9 — £200,000 • 3 bed • 2 bath
Land for sale in Land and Roadway, Huddersfield Road, Abney Grange, Mossley, Ashton-under-Lyne, Greater Manchester, OL5 9LP, OL5 — £1,000 • 1 bed • 1 bath
Land for sale in ***UNDER OFFER*** Land at Lock Keepers Court & Site of Former Droylsden Library, Droylsden Marina, Droylsden, M43 — POA • 1 bed • 1 bath
Land for sale in Tarbet Drive, Bolton, BL2 — £599,995 • 1 bed • 1 bath
Land for sale in Land At The Rear Huddersfield Road, Lees, Oldham, Greater Manchester, OL4 — £275,000 • 1 bed • 1 bath • 7405 ft²






































