**Standout Features:**
- Charming Victorian terraced house
- Open kitchen/dining room perfect for entertaining
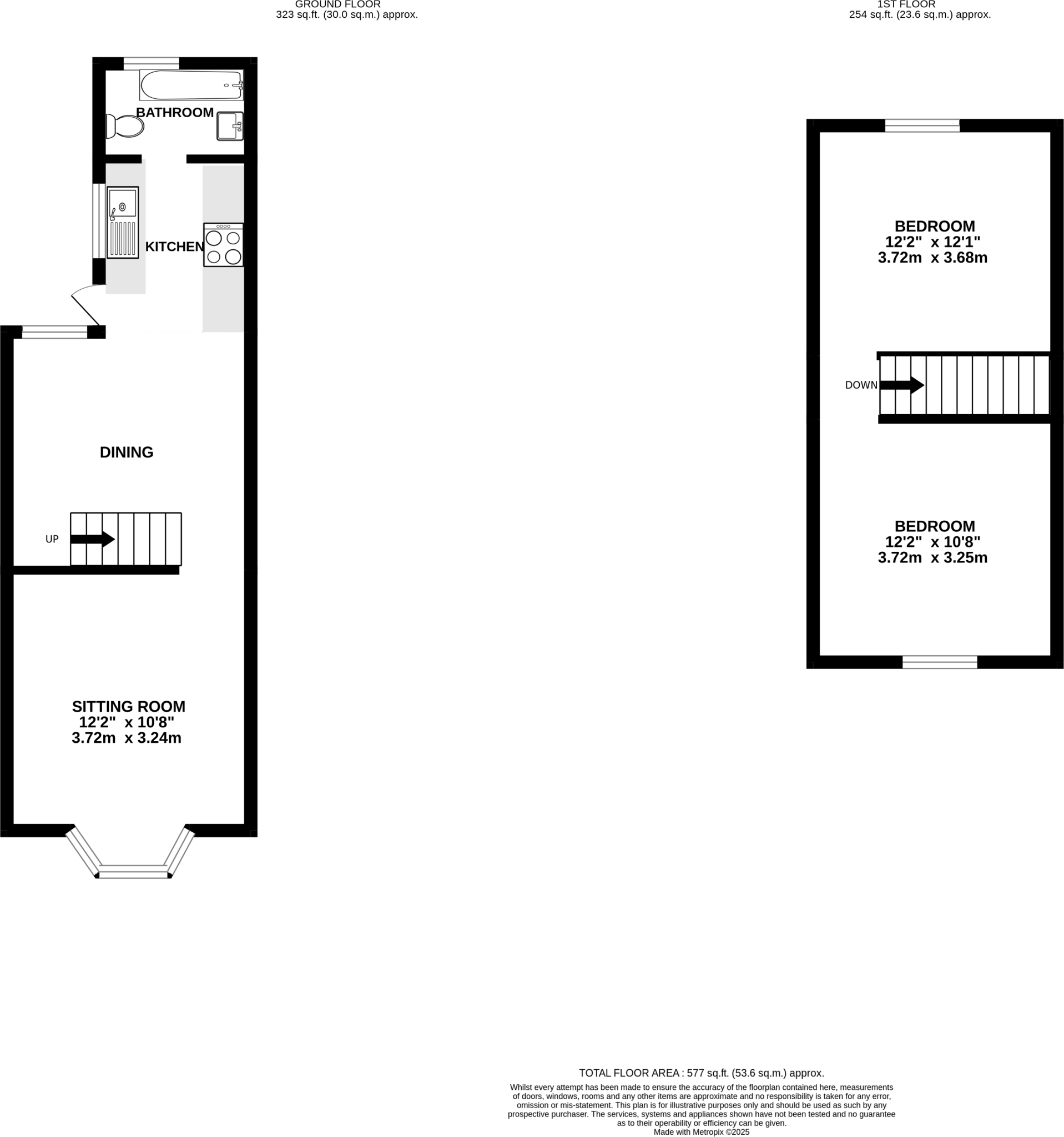
- Two double bedrooms and a functional bathroom
- Enclosed rear garden ideal for summer gatherings
- Convenient location in a cosmopolitan student neighborhood
- Chain-free sale for a quick transaction
- Council tax and utilities at affordable rates
**Notable Concerns:**
- Small overall size (577 sq ft)
- Potential for minor improvements needed in living room (dated wallpaper and worn condition)
- No insulation in cavity walls, which may require attention
This delightful two-bedroom Victorian terraced house combines classic charm with modern living. The striking open-plan kitchen/dining room serves as an inviting gathering space, enhanced by period-style features and appealing stripped wood floors. With two generously sized double bedrooms and a cozy bathroom, this compact yet functional home has all the essentials for first-time buyers or savvy investors looking for a rental opportunity.
The enclosed rear garden provides a private oasis for enjoying summer days, while excellent mobile signal and fast broadband add to the property's appeal for young professionals or families. Situated in a vibrant, cosmopolitan neighborhood near reputable schools and a plethora of amenities, this property promises both comfort and convenience. Act quickly—this chain-free opportunity is sure to attract a great deal of interest!
3 bedroom terraced house for sale in Manners Road, Southsea, Hampshire, PO4 — £295,000 • 3 bed • 1 bath • 1093 ft²
2 bedroom terraced house for sale in Londesborough Road, Southsea, Portsmouth, PO4 — £239,995 • 2 bed • 1 bath • 692 ft²
2 bedroom terraced house for sale in Boulton Road, Southsea, Hampshire, PO5 — £235,000 • 2 bed • 1 bath • 794 ft²
2 bedroom terraced house for sale in Reginald Road, Southsea, PO4 — £240,000 • 2 bed • 1 bath • 769 ft²
2 bedroom terraced house for sale in Sutherland Road, Southsea, Hampshire, PO4 — £230,000 • 2 bed • 1 bath • 689 ft²
2 bedroom terraced house for sale in Lawson Road, Southsea, Hampshire, PO5 — £270,000 • 2 bed • 1 bath • 630 ft²






































