Small freehold building plot with planning consent for a modern two-bedroom home.
Freehold plot with full planning approved (ref 23/01707/PFUL3)
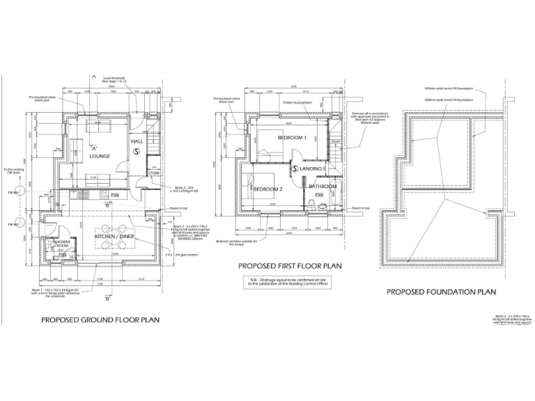
A compact freehold plot in Whitebeam Gardens with full planning permission (ref 23/01707/PFUL3) for a two-bedroom house offers a straightforward development route. Consent, plus available structural drawings and calculations, reduces early-stage risk and speeds delivery for a small-scale build-to-rent, self-build or developer scheme. The parcel sits within a minor conurbation and benefits from no flood risk, excellent mobile signal and fast broadband — important for modern tenancies.
The plot footprint is small (approx. 958 sq ft) and the permitted scheme is a modern two-storey house with garden, large windows and a balcony/patio design. This makes it suitable for single households, couples or rental units where efficient space utilisation and contemporary styling add appeal. Local amenities include schools, shops, bus links and a nearby nature reserve which support everyday living despite wider area challenges.
Buyers should weigh local context: the wider area scores high on deprivation and recorded crime is high. Several nearby schools have mixed Ofsted ratings, and the neighbourhood classification indicates hampered neighbourhoods. These factors will affect resale values and lettability and should inform rental projections and management plans.
At £52,000 for the freehold with planning, the site represents a low-entry development opportunity for experienced investors or builders comfortable operating in higher-risk locations. The small plot and compact design limit large-scale upside but also reduce upfront construction costs. Full planning documentation and structural drawings are available, allowing a focused delivery plan for an investor or specialist self-builder.
Land for sale in 128 Church Street, Eastwood, Nottingham, NG16 — £100,000 • 1 bed • 1 bath • 2585 ft²
Land for sale in Shelford Road, Gedling, Nottinghamshire, NG4 4JJ, NG4 — £90,000 • 1 bed • 1 bath
Land for sale in Portland Street, Kirkby-in-Ashfield, Nottingham, Nottinghamshire, NG17 — £50,000 • 1 bed • 1 bath
Land for sale in Ruddington Lane, Wilford, Nottinghamshire, NG11 7BY, NG11 — £180,000 • 1 bed • 1 bath
Land for sale in Columbia Street, Huthwaite, Sutton-in-Ashfield, Nottinghamshire, NG17 — £70,000 • 1 bed • 1 bath
Land for sale in Orchard Way, Sandiacre, Nottinghamshire, NG10 5NF, NG10 — £550,000 • 1 bed • 1 bath










































