**Standout Features:**
- Charming Victorian terraced house with period details.
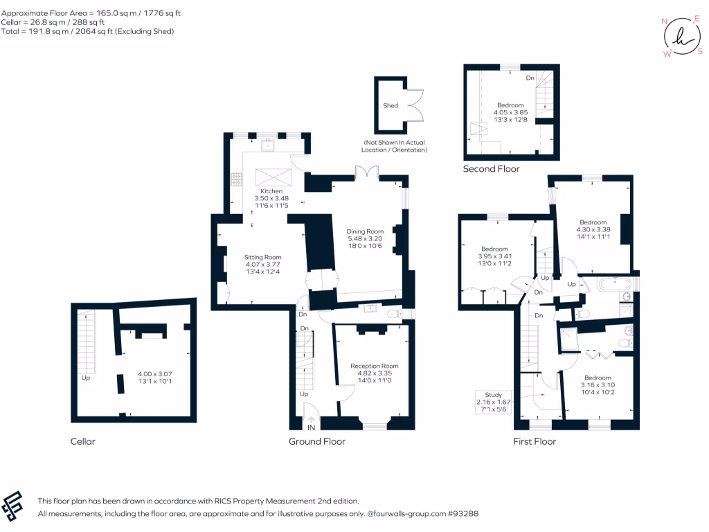
- Spacious living areas, including 4 bedrooms and flexible 2nd-floor setup.
- High ceilings and original fireplaces enhance character.
- Private rear garden and off-street parking.
- Ideal location in the village of Markyate with good local amenities.
- Excellent transport links to London and surrounding towns.
**Potential Downsides:**
- Likely requires some modern updates; solid brick walls could lack modern insulation.
- No mention of current glazing installation date may imply potential concerns.
This delightful Victorian townhouse in Markyate perfectly combines character and modern living within a picturesque village setting. Boasting four well-sized bedrooms, including a top-floor retreat, this property offers ample space for families or those seeking a home office setup. The heart of the home is an open-plan kitchen and breakfast area that flows seamlessly into a bright sitting room, ideal for entertaining or relaxing.
With beautiful period features, including high ceilings and original fireplaces, it exudes charm while providing comfort. Outside, a private garden invites leisurely afternoons, and off-street parking ensures convenience. Located within reach of superb schools and vibrant local amenities, this property is a perfect choice for families or first-time buyers. With current market demand, the unique blend of period charm and future potential makes this residence a must-see. Don’t miss your chance to own a piece of Markyate’s history!
3 bedroom semi-detached house for sale in High Street, Markyate, AL3 — £425,000 • 3 bed • 1 bath • 1525 ft²
4 bedroom end of terrace house for sale in Pickford Road, Markyate, Hertfordshire, AL3 — £595,000 • 4 bed • 2 bath • 1436 ft²
4 bedroom end of terrace house for sale in Pickford Road, Markyate, St. Albans, AL3 — £600,000 • 4 bed • 2 bath • 1512 ft²
3 bedroom end of terrace house for sale in Markyate, AL3 — £375,000 • 3 bed • 1 bath • 1348 ft²
4 bedroom terraced house for sale in High Street, Markyate, St. Albans, AL3 — £475,000 • 4 bed • 1 bath • 1088 ft²
4 bedroom semi-detached house for sale in High Street, Markyate, St. Albans, AL3 — £700,000 • 4 bed • 2 bath • 2453 ft²


















































































