Single‑storey, three‑bed detached bungalow with garage and private garden near St Albans.
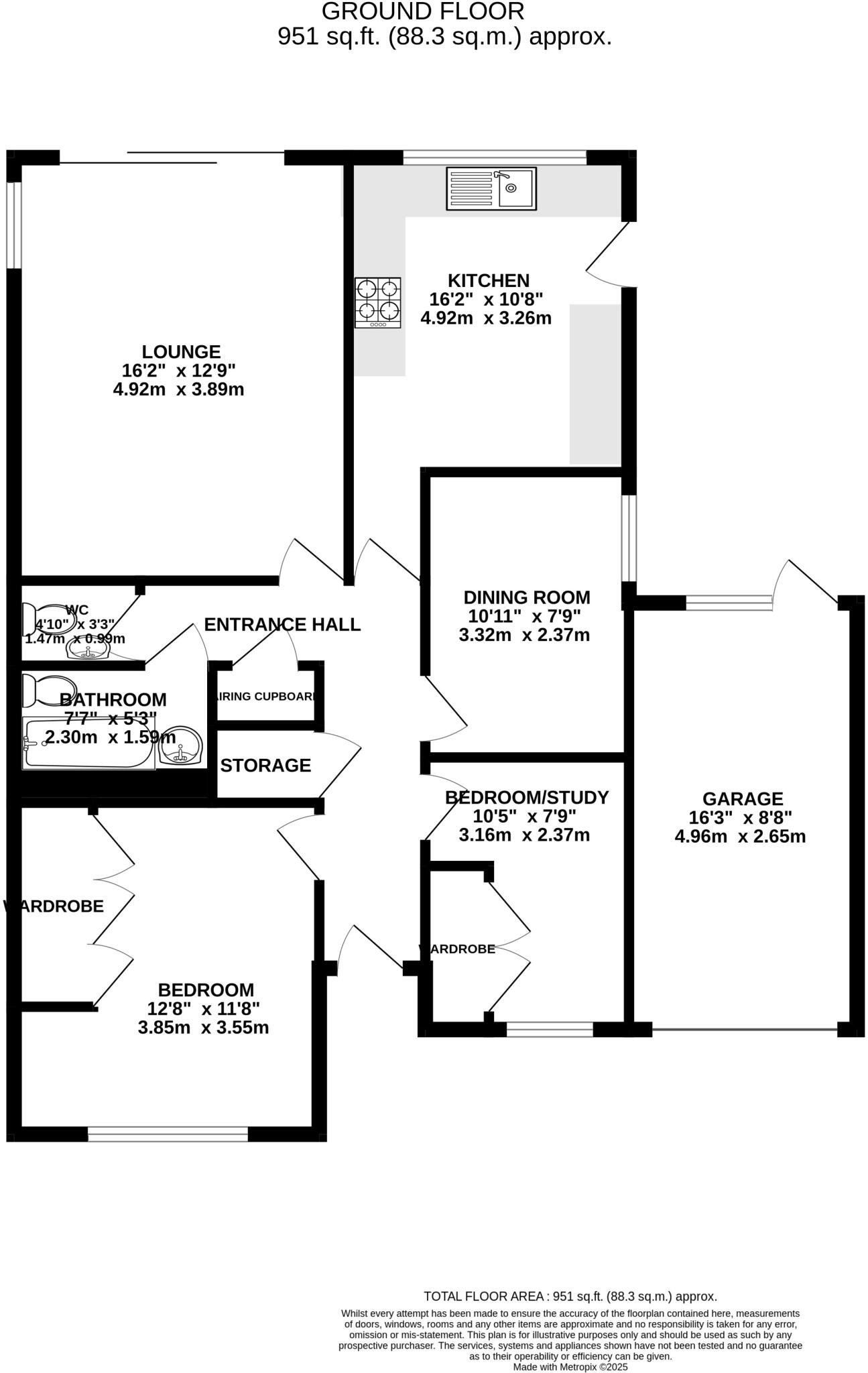
Detached single‑storey bungalow with 951 sq ft of accommodation
Generous 16ft lounge and separate dining room for flexible layouts
Three bedrooms; one easily used as a study or home office
Fitted kitchen with direct access to a private rear garden
Attached single garage plus wide block‑paved driveway parking
Only one full bathroom (plus separate WC) — may limit busy households
Small plot and modest front landscaping; low‑maintenance outdoor space
Area records above‑average crime; council tax classed as expensive
Tucked away in a quiet cul-de-sac in Park Street, this detached three-bedroom bungalow offers comfortable single‑storey living with straightforward, practical accommodation. The 16ft lounge and separate dining room give versatile reception space, while the fitted kitchen opens directly to a private rear garden—ideal for low‑maintenance outdoor entertaining. An attached single garage and wide driveway provide useful off‑street parking.
The layout works well for downsizers or small families: two good bedrooms plus a third that can serve as a home office or guest room. There is a family bathroom plus an additional WC, but only one full bathroom which may be limiting for some households. The property sits on a relatively small plot with modest frontage and minimal landscaping, so outdoor space is manageable rather than expansive.
Practical points to note: the home is freehold, around 951 sq ft and single‑storey throughout, making it accessible and easy to maintain. It benefits from excellent transport links to St Albans and the motorway network, fast broadband and strong mobile signal. Local schools are well regarded. Conversely, the area records above‑average crime and council tax is listed as expensive—factors to weigh when considering long‑term running costs and security.
Overall this is a sensible, well‑located bungalow for buyers seeking single‑level living with garage parking and good links. It will suit downsizers wanting low‑maintenance accommodation, small families needing practical ground‑floor space, or buyers open to modest cosmetic updates to personalise the interior.
4 bedroom detached house for sale in Park Street Lane, Park Street, St. Albans, Hertfordshire, AL2 — £875,000 • 4 bed • 3 bath • 1920 ft²
2 bedroom bungalow for sale in Dell Rise, Park Street, St. Albans, Hertfordshire, AL2 — £500,000 • 2 bed • 1 bath • 1000 ft²
3 bedroom bungalow for sale in Mayflower Road, Park Street, St. Albans, Hertfordshire, AL2 — £550,000 • 3 bed • 2 bath • 888 ft²
2 bedroom bungalow for sale in Beech Road, St. Albans, Hertfordshire, AL3 — £500,000 • 2 bed • 1 bath • 583 ft²
4 bedroom semi-detached house for sale in Hawfield Gardens, Park Street, St. Albans, Hertfordshire, AL2 — £700,000 • 4 bed • 1 bath • 1787 ft²
3 bedroom bungalow for sale in The Close, Harpenden, Hertfordshire, AL5 — £874,950 • 3 bed • 1 bath • 1186 ft²


















































