Freshly updated single-floor home with garage and generous garden.
Chain-free, vacant possession and immediate occupation possible
Recently redecorated with new carpets in principal rooms
Modern kitchen with integrated oven and gas hob
Single wet-room shower; only one bathroom for two bedrooms
Single garage plus driveway; good storage and workshop space
Decent rear garden, direct access from lounge
EPC D (65); Council Tax Band E — consider running costs
Crime levels above average in the local area
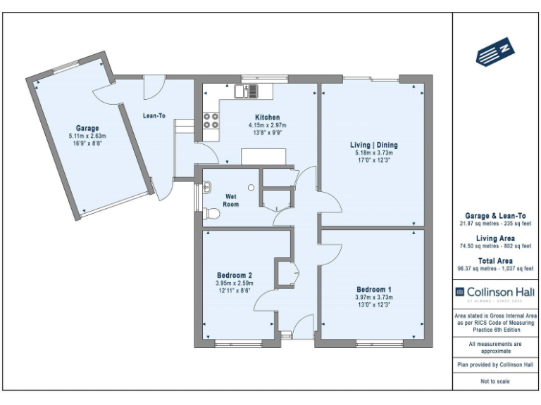
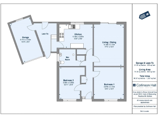
This single-storey semi-detached home in Park Street offers comfortable, all-on-one-floor living across about 1,000 sq ft. Recently redecorated with new carpets and a modern kitchen, it’s ready for immediate occupation and suits anyone wanting a low-maintenance, single-level layout.
Two double bedrooms, a spacious lounge with garden access, and a wet-room shower provide practical day-to-day living. A single garage plus driveway give secure parking and useful storage. The rear garden is a good size for the area and accessible directly from the living room.
Practical points are clear: the property has an EPC rating of D (65) and sits in Council Tax Band E. Crime levels in the neighbourhood are above average and the house was built in the mid-20th century, so buyers should consider potential long-term maintenance or services upgrades.
Offered freehold and chain-free, this bungalow is well placed for local primary and secondary schools, bus links and nearby amenities. It will particularly suit downsizers or buyers seeking a straightforward, single-storey home with scope to personalise further.
2 bedroom semi-detached bungalow for sale in Seaman Close, Park Street, St. Albans, AL2 2NX, AL2 — £465,000 • 2 bed • 1 bath • 838 ft²
3 bedroom detached bungalow for sale in Heracles Close, Park Street, St. Albans, AL2 — £755,000 • 3 bed • 2 bath • 1231 ft²
3 bedroom detached bungalow for sale in Mount Drive, Park Street, St. Albans, AL2 2NU, AL2 — £650,000 • 3 bed • 1 bath • 1045 ft²
3 bedroom detached bungalow for sale in Tippendell Lane, Park Street, St. Albans, AL2 2HD, AL2 — £630,000 • 3 bed • 2 bath • 1291 ft²
4 bedroom detached house for sale in Burston Drive, Park Street, St. Albans, AL2 — £765,000 • 4 bed • 2 bath • 1403 ft²
3 bedroom bungalow for sale in Ringway Road, Park Street, St. Albans, AL2 — £550,000 • 3 bed • 1 bath • 920 ft²


























































