KA21 6BZ - 3 bed detached dormer villa in North Ayrshire And Arran, KA…

View on Property Piper

3 bedroom detached house for sale in 29 Mid Dykes Road, Saltcoats, KA21 6BZ, KA21

Summary - 29, MID DYKES ROAD, SALTCOATS KA21 6BZ

3 bed 2 bath Detached

Low-maintenance coastal home with added upstairs bedroom and garage.
Detached three-bedroom villa with dormer master and en-suite
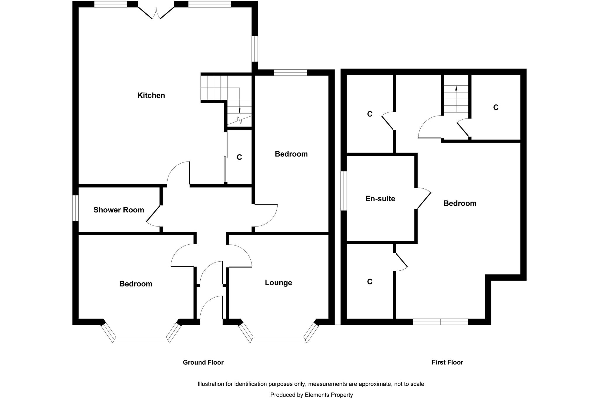
Comfortable, well-presented detached bungalow with a dormer conversion, suited to buyers seeking low-maintenance, single-level living with added upstairs space. The ground floor combines a bay-front lounge, two double bedrooms and an extended open-plan kitchen/dining/living area that opens onto a tidy rear garden — practical for relaxed entertaining and everyday life. The first-floor master bedroom includes two walk-in wardrobes and an en-suite shower room, giving useful privacy and storage.

Practical features include gas central heating, double glazing, generous internal storage and solar panels mounted on the garage roof, which may reduce running costs. A detached garage with electricity, double gated side driveway and chipped front drive provide confidential off-street parking and external storage ideal for a car and garden equipment.

Buyers should note the property sits on a small-to-average suburban plot and the internal footprint is moderate; the dormer increases usable space but the overall garden and room sizes are not extensive. Council tax is above average for the area, and the immediate locality is described as very deprived — factors to consider for long-term value and local services. Mobile signal is average, though broadband speeds are fast.

This freehold detached villa offers a sensible balance of single-floor convenience, added upstairs accommodation and modern fittings. It will suit downsizers or buyers seeking a modest, flexible family home in a coastal Ayrshire suburb, provided they accept the compact plot and local socio-economic context.

Property Details

Brochure Descriptions

Image Descriptions

Floorplan Description

Rooms

Textual Property Features

Target Audience

AI Tags

Detected Visual Features

Nearest Bars And Restaurants

,,,,}

Nearest General Shops

,,}

Nearest Grocery shops

,,}

Nearest Supermarkets

,,}

Nearest Religious buildings

,,}

Nearest Medical buildings

,,,}

Nearest Airports

,,}

Nearest Leisure Facilities

,,,,}

Nearest Tourist attractions

,,}

Nearest Train stations

,,,,}

Nearest Bus stations and stops

,,,,}

Nearest Hotels

,,}

Tags

Local Market Stats

AirBnB Data

Similar Properties

Meta

High Res Images

Compatible Images

Low res Images

Thumbnails

Raw Images

High Res Floorplan Images

Compatible Floorplan Images

Low res Floorplan Images

FloorplanImages Thumbnail

Raw Floorplan Images