Spacious, characterful former chapel with garden, parking and conversion potential.
Off-street parking for up to four vehicles
Enclosed, well‑maintained garden with deck and patio
Dedicated home office/outbuilding with power and lighting
Character features: arched windows, high ceilings, period detail
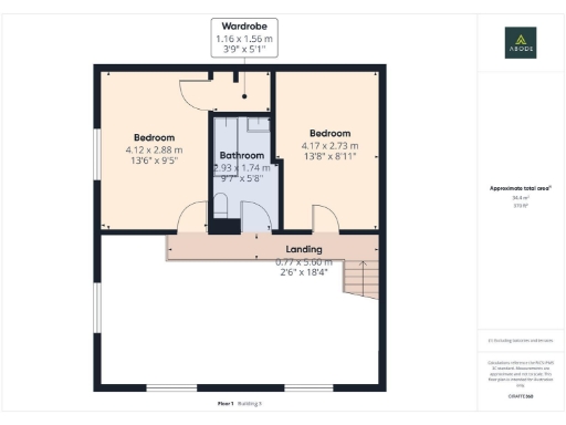
Large overall space ~2,101 sq ft; potential to create third bedroom
Planning application P/2025/00814 to reconfigure and add bedroom
Split-level layout and mezzanine — not step‑free throughout
EPC D (68); energy improvements likely needed to reduce running costs
This distinctive former chapel offers generous, characterful living in the sought-after village of Abbots Bromley. Tall arched windows, high ceilings and period details combine with sympathetic modern updates across a spacious split-level plan, creating dramatic principal rooms and versatile living space. The plot includes off-street parking for up to four cars and an enclosed, well-maintained garden with a dedicated home office — ideal for remote working or hobbies.
The current layout provides two double bedrooms and two bathrooms with clear scope to increase flexibility: the owners have submitted East Staffordshire Application P/2025/00814 to remodel the ground floor and add a third bedroom on the first floor. The property’s substantial overall size (approximately 2,101 sq ft) and mezzanine landing mean there is genuine potential to adapt rooms to suit a growing family or create a home-with-workspace arrangement.
Buyers should note material practical points: accommodation is arranged over split levels and a mezzanine, which may be awkward for anyone needing step-free access. The building’s conversion date details list construction in the 1983–1990 period and the EPC is currently a D (68), so energy improvements could significantly raise comfort and running costs. Planning application status should be checked with the local authority; permission is referenced but not confirmed.
In location terms, this house sits in one of Staffordshire’s most picturesque villages, close to good primary schools, village amenities and open green spaces. It will suit families or buyers seeking a character home with flexible space and improvement potential, provided they are comfortable with the split-level layout and possible renovation/upgrading works.
2 bedroom detached house for sale in Garshall Green, Milwich, Stafford, ST18 — £545,000 • 2 bed • 2 bath • 1322 ft²
2 bedroom detached house for sale in The Old Methodist Chapel, High Street, Rocester, ST14 — £399,950 • 2 bed • 1 bath • 1874 ft²
3 bedroom detached house for sale in Sandon Road, Hilderstone, Stone, ST15 — £595,000 • 3 bed • 2 bath • 1405 ft²
3 bedroom detached house for sale in Outwoods, Newport, TF10 — £395,000 • 3 bed • 1 bath • 947 ft²
5 bedroom detached house for sale in Ticknall Road, Hartshorne, Swadlincote, DE11 — £785,000 • 5 bed • 2 bath • 720 ft²
3 bedroom detached house for sale in Mayfield Road, Mayfield, Ashbourne, DE6 — £350,000 • 3 bed • 3 bath • 2003 ft²


































































































































































