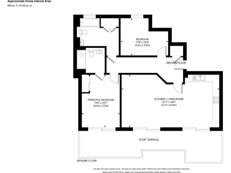
**Standout Features:**
- Modern two-bedroom flat with private balcony
- En-suite in the principal bedroom
- Allocated off-street parking space
- Open-plan living area with floor-to-ceiling windows
- Located in the prestigious Cricketers Wharf development
- Chain free with 117 years remaining on the lease
**Concerns:**
- Service charge of £2,460 per year
- Ground rent at £550 per year
Positioned along the picturesque River Wey, this sophisticated two-bedroom flat in the desirable Cricketers Wharf development combines modern living with tranquillity. The spacious open-plan living and dining area, illuminated by abundant natural light, leads seamlessly to a fully fitted contemporary kitchen—perfect for both everyday dining and entertaining. Enjoy the luxury of a principal suite featuring its own en-suite, complemented by a second double bedroom and a stylish family bathroom.
The private balcony offers a serene outdoor retreat to enjoy leisurely moments overlooking the river. This property not only boasts an allocated parking space but also promotes an active lifestyle with scenic riverside walks right at your doorstep. Located within walking distance to Guildford's vibrant town center, excellent schools, and convenient transport links to London, this home is ideal for families, first-time buyers, or investors eager to benefit from its rental potential. Act quickly—properties in this exclusive riverside development don't stay on the market for long!
2 bedroom apartment for sale in Wharf Road, Guildford, GU1 — £550,000 • 2 bed • 2 bath • 1013 ft²
2 bedroom flat for sale in Wharf Road, Guildford, Surrey, GU1 — £425,000 • 2 bed • 1 bath • 678 ft²
2 bedroom flat for sale in Walnut Tree Close, Guildford, Surrey, GU1 — £450,000 • 2 bed • 2 bath • 830 ft²
2 bedroom apartment for sale in Wharf Road, Guildford, Surrey, GU1 — £550,000 • 2 bed • 2 bath • 948 ft²
2 bedroom apartment for sale in Faraday Road, Guildford, Surrey, GU1 — £305,000 • 2 bed • 2 bath • 723 ft²
2 bedroom flat for sale in Walnut Tree Close, Guildford, Surrey, GU1 — £340,000 • 2 bed • 2 bath • 687 ft²


























































































