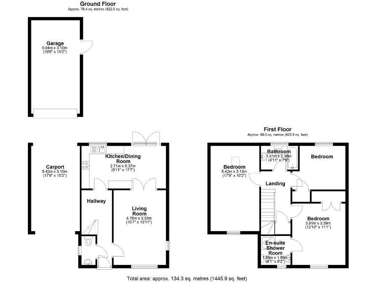
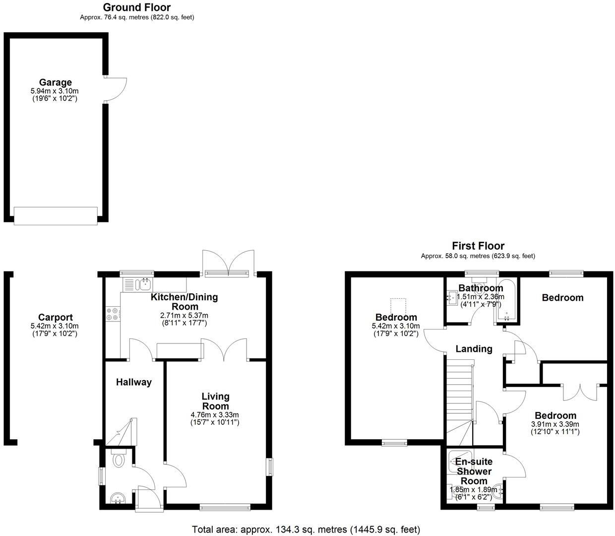
**Standout Features:**
- No onward chain, allowing for immediate move-in
- Three spacious bedrooms, including an ensuite for the master
- Well-presented linked detached house in a desirable area
- Walking distance to Saxmundham town center and railway station
- Covered parking and a garage
- Modern fitted kitchen with integrated appliances
- Enclosed manageable garden
- Double glazing and gas central heating (EPC - B)
This beautifully maintained three-bedroom link-detached house on Beech Road, Saxmundham, is a perfect family home, especially for first-time buyers seeking comfort and convenience. Benefiting from no onward chain, this home is ready for its new owners to enjoy right away. Featuring a spacious ensuite master bedroom, two additional well-proportioned bedrooms, and a family bathroom, it accommodates family living effortlessly. The heart of the home—a modern kitchen—comes fitted with integrated appliances and opens onto a cozy sitting room, enhancing the home's inviting ambiance.
The property’s outdoor space is complemented by a manageable garden, perfect for relaxing or entertaining, while the covered parking and garage provide ample storage and practicality. Located within walking distance to the town center, you'll have easy access to local shops, schools, and transport links, including the railway station for direct routes to Ipswich and London. While the area shows above-average crime rates, this home offers a secure and comfortable environment in an affluent community. With fast internet and mobile connectivity, your modern living needs are well catered to. Don’t miss out on this fantastic opportunity—this charming property won’t be available for long!
3 bedroom semi-detached house for sale in Beech Road, Saxmundham, IP17 — £290,000 • 3 bed • 2 bath • 688 ft²
3 bedroom terraced house for sale in Bittern Road, Saxmundham, IP17 — £229,500 • 3 bed • 2 bath • 750 ft²
2 bedroom terraced house for sale in Deben Road, Saxmundham, IP17 — £190,000 • 2 bed • 1 bath • 633 ft²
3 bedroom semi-detached house for sale in Saxmundham, Suffolk, IP17 — £325,000 • 3 bed • 2 bath • 1114 ft²
3 bedroom link detached house for sale in Beech Road, Saxmundham, Suffolk, IP17 — £340,000 • 3 bed • 2 bath • 1165 ft²
4 bedroom detached house for sale in Warren Avenue, Saxmundham, IP17 — £360,000 • 4 bed • 2 bath • 1396 ft²










































































