**Standout Features:**
- Chain-free sale
- Three well-proportioned bedrooms, including an ensuite to the principal bedroom
- Spacious private rear garden
- Detached garage and off-road parking
- Convenient location near town amenities and railway station
- Modern kitchen with utility room
**Property Summary:**
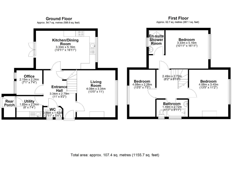
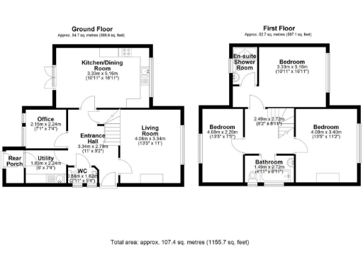
Discover a delightful three-bedroom semi-detached home nestled in the charming market town of Saxmundham. This property boasts a spacious layout with a welcoming entrance hall leading to a living room, a versatile office, a modern kitchen/diner with patio doors, and a convenient utility room. The first floor features three bedrooms, with the principal bedroom enjoying its own ensuite, while the others are served by a stylish family bathroom.
Homeowners will appreciate the large private lawned garden—perfect for family gatherings and outdoor activities—and the practicality of a detached garage and off-road parking. This charming residence is set in a tranquil yet accessible location within walking distance to local shops, schools rated Good by Ofsted, and the railway station offering direct services to Ipswich and onward to London.
While enjoying an appealing property condition overall, buyers should note that the spacious garden requires periodic maintenance. However, its potential for expansion or enhancements makes it an exciting opportunity. With its attractive price point and numerous local amenities, this home is ideal for families and first-time buyers looking to settle in a friendly community. Act quickly, as homes in this desirable area don’t stay on the market for long!
3 bedroom semi-detached house for sale in Franklin Road, Saxmundham, Suffolk, IP17 — £260,000 • 3 bed • 2 bath • 1048 ft²
4 bedroom detached house for sale in Montagu Drive, Saxmundham, IP17 — £450,000 • 4 bed • 2 bath • 1832 ft²
4 bedroom detached house for sale in Heron Road, Saxmundham, IP17 — £335,000 • 4 bed • 3 bath • 1128 ft²
4 bedroom detached house for sale in Warren Avenue, Saxmundham, IP17 — £360,000 • 4 bed • 2 bath • 1396 ft²
4 bedroom detached house for sale in Wordsworth Close, Saxmundham, IP17 — £399,500 • 4 bed • 2 bath • 1483 ft²
3 bedroom link detached house for sale in Beech Road, Saxmundham, IP17 — £340,000 • 3 bed • 2 bath • 690 ft²






















































































































