**Standout Features:**
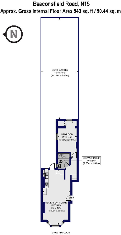
- Approx. 543 sq ft of well-designed living space in a Victorian conversion
- Generous double bedroom with serene garden views
- Open-plan modern kitchen/diner and stylish living area
- Private garden measuring over 45 ft, perfect for outdoor enjoyment
- Excellent transport links within walking distance to Seven Sisters Station
- Leasehold with over 100 years remaining, low service charges, and affordable council tax
- Vibrant, family-friendly neighborhood with local parks and amenities
This delightful ground flat in South Tottenham showcases approximately 543 sq ft of stylish, lateral living within an attractive Victorian terrace. Ideal for first-time buyers or young families, the property features a spacious double bedroom that overlooks a beautifully maintained, south-east facing garden—your private retreat for summer gatherings. The modern open-plan kitchen and dining area seamlessly flow into a cozy reception, making it an excellent space for entertaining.
Positioned just minutes from Seven Sisters Station, this property ensures easy commuting and quick access to the city's vibrant offerings. Enjoy nearby parks, such as Chestnuts and Downhills, and a thriving local scene filled with independent eateries and community shops. With a strong rental potential and a growing neighborhood appeal, this home presents a remarkable opportunity—potential buyers are encouraged to register interest promptly to secure this exclusive property before it's gone!
Note: The area has very high crime rates and the overall classification indicates some level of deprivation, so prospective buyers should weigh these factors when considering the location.
1 bedroom ground floor flat for sale in Beaconsfield Road, London, N15 — £349,950 • 1 bed • 1 bath • 516 ft²
1 bedroom apartment for sale in Tynemouth Road, London, N15 — £350,000 • 1 bed • 1 bath • 493 ft²
2 bedroom ground floor flat for sale in Springfield Road, London, N15 — £435,000 • 2 bed • 1 bath • 591 ft²
1 bedroom flat for sale in Fairbourne Road, London, N17 — £375,000 • 1 bed • 1 bath • 541 ft²
1 bedroom ground floor flat for sale in Tynemouth Road, London, N15 — £390,000 • 1 bed • 1 bath • 553 ft²
2 bedroom apartment for sale in Higham Road, London, N17 — £485,000 • 2 bed • 1 bath • 605 ft²






































































