Well-kept four-bedroom near shops, station, and top-rated schools.
Detached four-bedroom house on a decent plot with south-facing garden
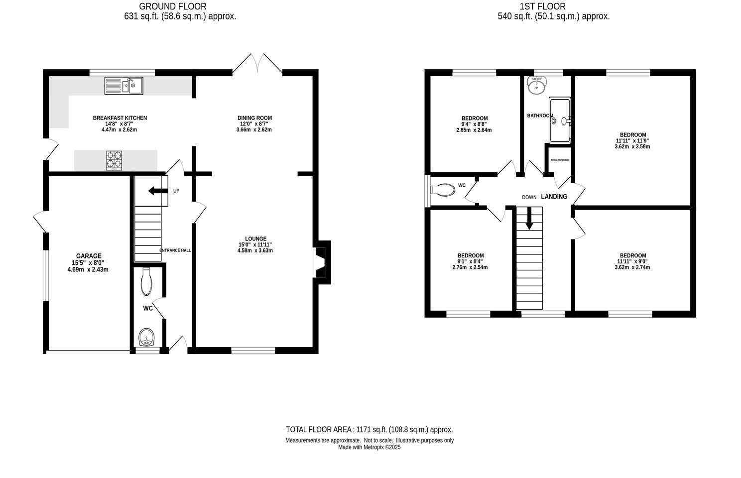
Set on a decent plot in central Holmes Chapel, this well-maintained 1970s detached house offers practical family living within easy walking distance of shops, schools and the train station. The property’s two reception rooms connect nicely to the south-facing rear garden, creating a bright, usable space for everyday life and entertaining. A modern kitchen with white units and a side door is ready for family cooking and practical access to the outside.
Upstairs are four bedrooms served by a single bathroom (bath and basin) with a separate WC; the layout suits a growing family but note there is only one full bathroom. The house measures about 811 sq ft, so internal space is modest for a four-bedroom home — buyers should expect compact bedrooms and living areas compared with newer, larger family houses.
Practical benefits include an attached single garage, driveway parking, freehold tenure and very low local crime. The property appears well cared-for with scope for light modernisation to personalise finishes. Excellent local schools and fast broadband make it especially attractive to families and professionals seeking a convenient, village-feel location.
Material considerations: overall size is small for four bedrooms and there is one bathroom only. Buyers seeking larger open-plan living or additional bathrooms will need to reconfigure space or extend (subject to consents). No flooding risk is recorded and the southerly garden aspect is a notable positive for outdoor use and light.
4 bedroom detached house for sale in Elm Drive, Holmes Chapel, CW4 — £490,000 • 4 bed • 2 bath • 1398 ft²
4 bedroom semi-detached house for sale in Sadlers Close, Holmes Chapel, CW4 — £425,000 • 4 bed • 2 bath • 1700 ft²
3 bedroom detached house for sale in Troon Close, Holmes Chapel, CW4 — £395,000 • 3 bed • 1 bath • 992 ft²
4 bedroom detached house for sale in Glenorchy Close, Holmes Chapel, Crewe, Cheshire, CW4 — £440,000 • 4 bed • 2 bath • 1640 ft²
3 bedroom link detached house for sale in St. Andrews Drive, Holmes Chapel, CW4 — £425,000 • 3 bed • 1 bath • 1129 ft²
4 bedroom detached house for sale in Bramble Close, Middlewich, CW10 — £370,000 • 4 bed • 3 bath • 1514 ft²










































































