CW4 7EG - 4 bedroom semidetached house for sale in Sadlers Close, Hol…

View on Property Piper

4 bedroom semi-detached house for sale in Sadlers Close, Holmes Chapel, CW4

Summary - 15 SADLERS CLOSE HOLMES CHAPEL CREWE CW4 7EG

4 bed 2 bath Semi-Detached

Four generous bedrooms across first floor
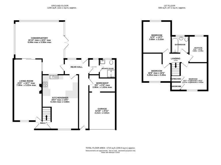
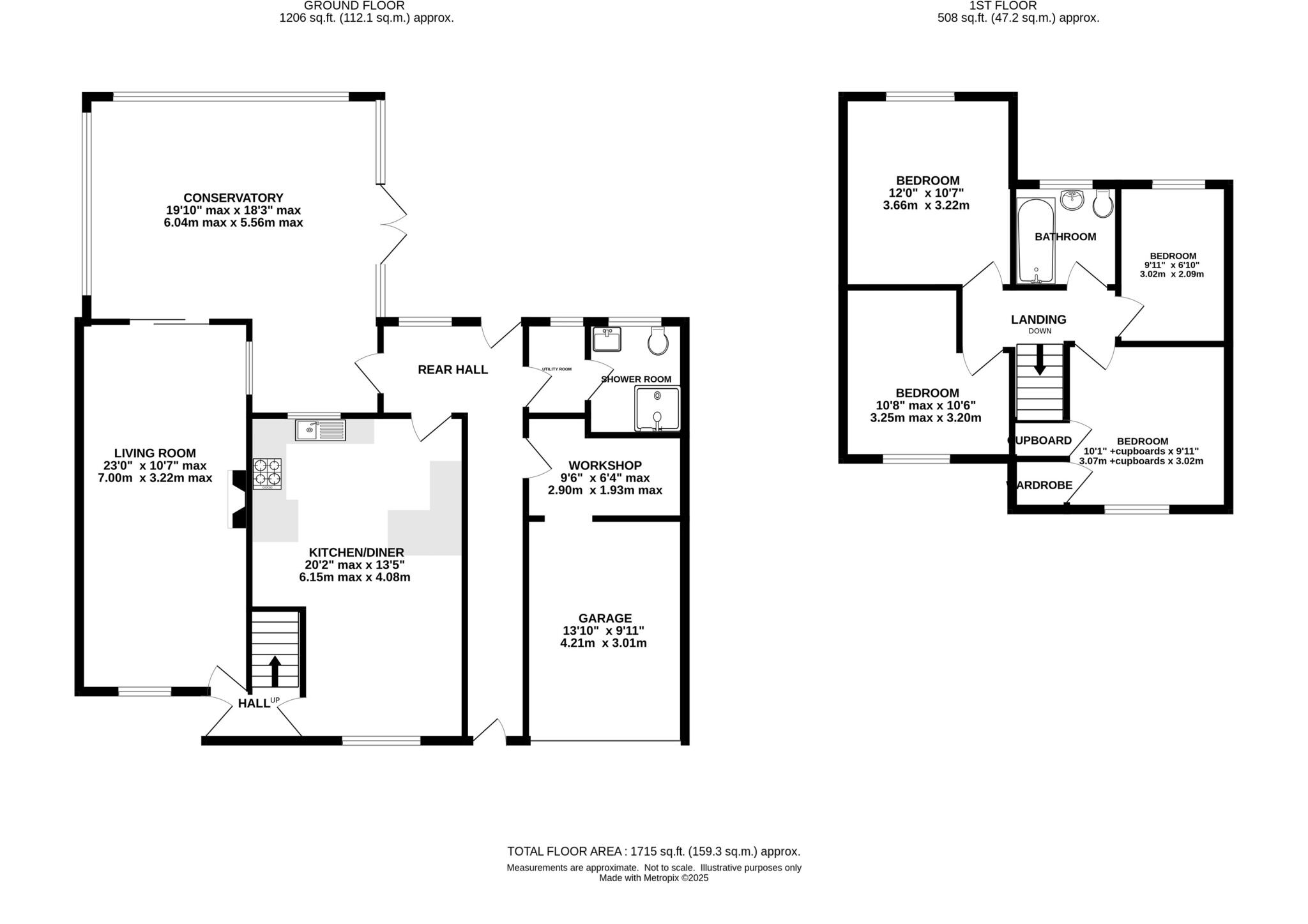
A spacious, well‑extended four‑bedroom semi in the heart of Holmes Chapel, ideal for families who want extra living space and easy access to local schools and the train station. The ground floor offers an open living room that flows into a large L‑shaped conservatory, a kitchen‑diner, utility room, downstairs shower room, and an integral garage with a workshop. Upstairs there are four generous bedrooms and a three‑piece family bathroom.

The south‑facing rear garden is private and well enclosed by fence and hedge boundaries, with a large paved patio, lawn and a timber shed — a good size for children or entertaining. Off‑street parking is provided by a driveway at the front and the property sits in a quiet cul‑de‑sac close to Holmes Chapel centre and local amenities.

Practical details: the house is freehold, extends to around 1,700 sq ft and sits in a very low crime, affluent area with fast broadband and no flood risk. Council tax is moderate. There are excellent nearby schools rated Outstanding/Good, making this a strong family location.

No significant structural issues or flood risk are recorded in the provided information. The overall size is described as average for the area; buyers should inspect finishes and building fabric in person to confirm condition and any updating needs.

Property Details

Brochure Descriptions

Image Descriptions

Floorplan Description

Rooms

Textual Property Features

Detected Visual Features

Nearby Schools

Nearest Bars And Restaurants

,,,,}

Nearest General Shops

,,}

Nearest Grocery shops

,,}

Nearest Supermarkets

,,}

Nearest Religious buildings

,,}

Nearest Medical buildings

,,,}

Nearest Airports

}

Nearest Leisure Facilities

,,,,}

Nearest Tourist attractions

,,}

Nearest Train stations

,,,,}

Nearest Bus stations and stops

,,,,}

Nearest Hotels

,,}

Tags

Local Market Stats

Similar Properties

Meta

High Res Images

Compatible Images

Low res Images

Thumbnails

Raw Images

High Res Floorplan Images

Compatible Floorplan Images

Low res Floorplan Images

FloorplanImages Thumbnail

Raw Floorplan Images