TQ6 0HS - 3 bedroom cottage for sale in Dittisham, TQ6

View on Property Piper

3 bedroom cottage for sale in Dittisham, TQ6

Summary - 26 Dittisham Court, Riverside Road, Dittisham TQ6 0HS

3 bed 2 bath Cottage

**Standout Features:**
- Double fronted cottage in the heart of Dittisham
- 3 bedrooms with en-suite and bathroom
- Scenic views of the River Dart
- Generous outdoor garden space with patio
- Chain-free sale
- Requires modernization, offering renovation potential

**Overview:**
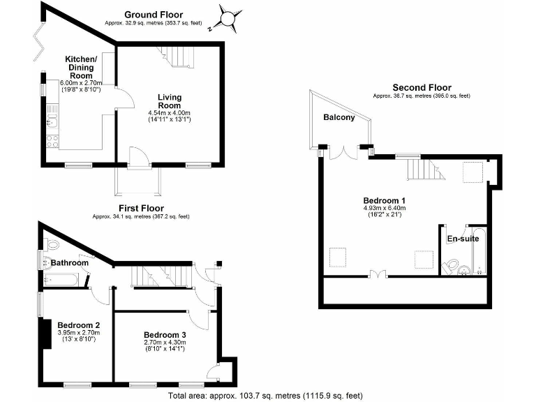
Discover the charming Freestone Cottage, a delightful double fronted property nestled in the picturesque village of Dittisham. This spacious home offers 3 bedrooms, including an en-suite, providing ample room for families or investors looking to create their dream space. The unique layout features cozy communal areas, a kitchen with potential for a modern upgrade, and stunning views from the second-floor loft room with a private balcony.

While the property requires modernization, this presents an excellent opportunity to personalize and increase its value. The serene outdoor area, accessible from the side gardens, complements the cozy indoor spaces and is perfect for relaxation or entertaining. Located in a low-crime, thriving countryside community, this home is just steps away from local amenities and renowned schools, making it ideal for families. Don't miss your chance to transform this wonderful cottage into a unique sanctuary!

Property Details

Brochure Descriptions

Image Descriptions

Floorplan Description

Rooms

Textual Property Features

Detected Visual Features

EPC Details

Nearby Schools

Nearest Bars And Restaurants

,,,,}

Nearest General Shops

,,}

Nearest Grocery shops

,,}

Nearest Supermarkets

,,}

Nearest Religious buildings

,,}

Nearest Medical buildings

,,,}

Nearest Leisure Facilities

,,,,}

Nearest Tourist attractions

,,}

Nearest Train stations

,,,,}

Nearest Bus stations and stops

,,,,}

Nearest Hotels

,,}

Tags

Local Market Stats

AirBnB Data

Similar Properties

Meta

High Res Images

Compatible Images

Low res Images

Thumbnails

Raw Images

High Res Floorplan Images

Compatible Floorplan Images

Low res Floorplan Images

FloorplanImages Thumbnail

Raw Floorplan Images