Small, unmodernised 55+ duplex with garden and garage near St John’s Wood amenities.
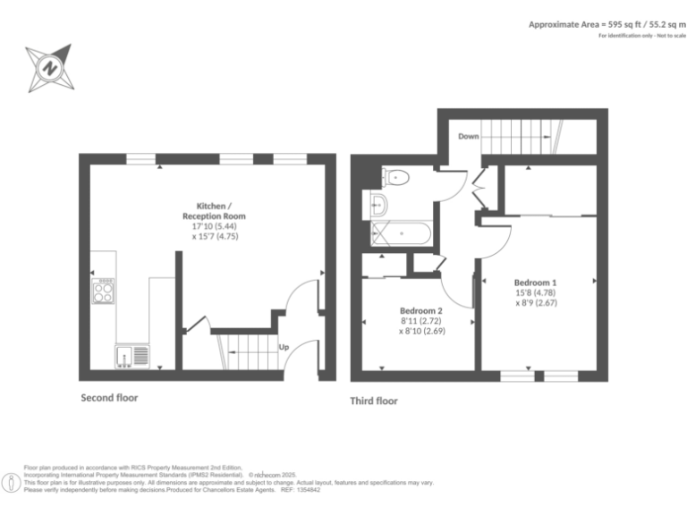
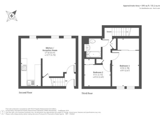
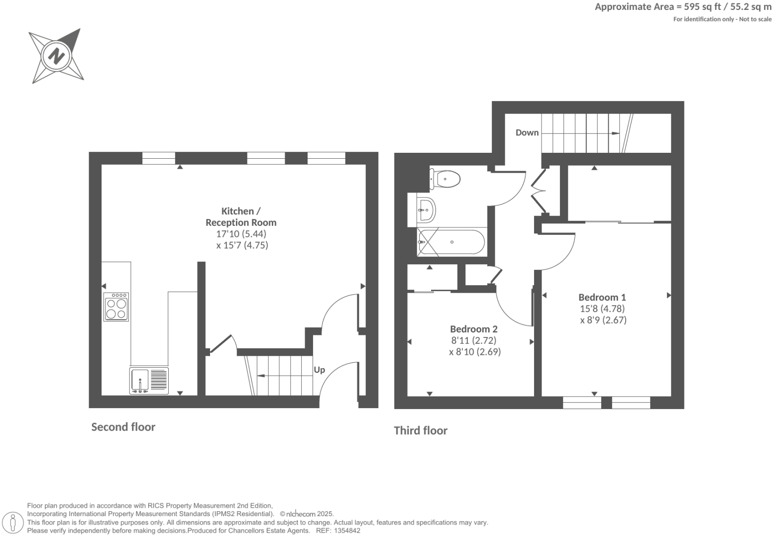
Two-bedroom duplex, 567 sq ft, second and third floors
A two-bedroom duplex in Storey Court offering 567 sq ft of living space across the second and third floors, served by a lift and communal gardens reserved for residents aged 55+. The building dates from the 1930–1949 period and provides practical features such as a garage and mains gas boiler with radiators.
The flat is unmodernised and needs renovation throughout; you will see dated finishes and some staining in the living room. Important practical cautions: the lease has 82 years remaining and will require timely renewal, and the building’s timber-frame walls are assumed to lack insulation, so refurbishments should budget for thermal upgrades.
This property will suit a downsizer or retiree seeking a small, well-located home in St John’s Wood who is prepared to manage a refurbishment and lease-extension. It sits in an inner-city, culturally mixed area with very low crime, excellent mobile signal and average broadband. Local amenities and a range of reputable schools (including outstanding and independent options) are within easy reach.
Buyer note: will require formal checks if purchasing without a physical viewing. Council tax is above average for the area.
3 bedroom flat for sale in Swain Street, London, NW8 — £450,000 • 3 bed • 1 bath • 947 ft²
2 bedroom flat for sale in Eamont Court, St Johns Wood, NW8 — £635,000 • 2 bed • 1 bath • 656 ft²
2 bedroom apartment for sale in Townshend Court, Mackennal Street, London, NW8 — £575,000 • 2 bed • 1 bath • 641 ft²
1 bedroom flat for sale in St John's Wood Court, St John's Wood NW8 — £595,000 • 1 bed • 1 bath • 711 ft²
2 bedroom flat for sale in Storey Court, St Johns Wood Road, NW8 — £450,000 • 2 bed • 1 bath • 689 ft²
3 bedroom flat for sale in Avenue Close, St Johns Wood, NW8 — £1,250,000 • 3 bed • 2 bath • 1268 ft²


































































