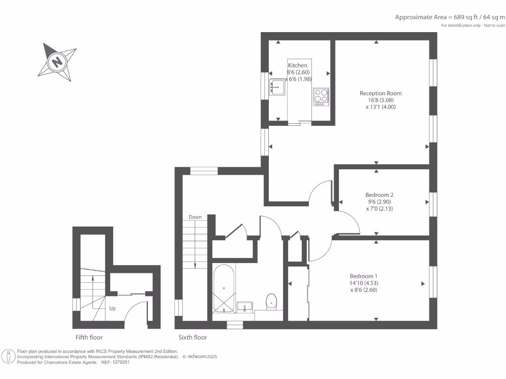
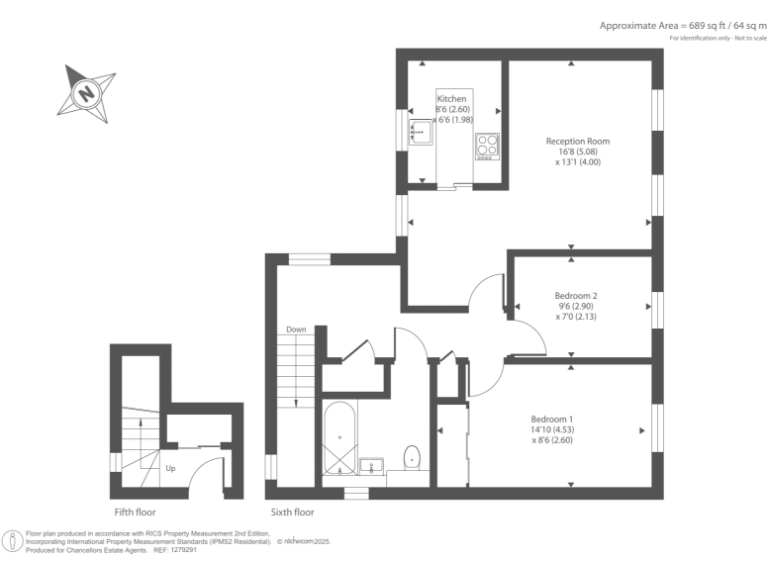
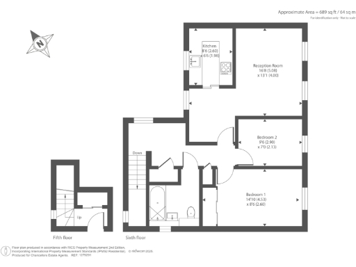
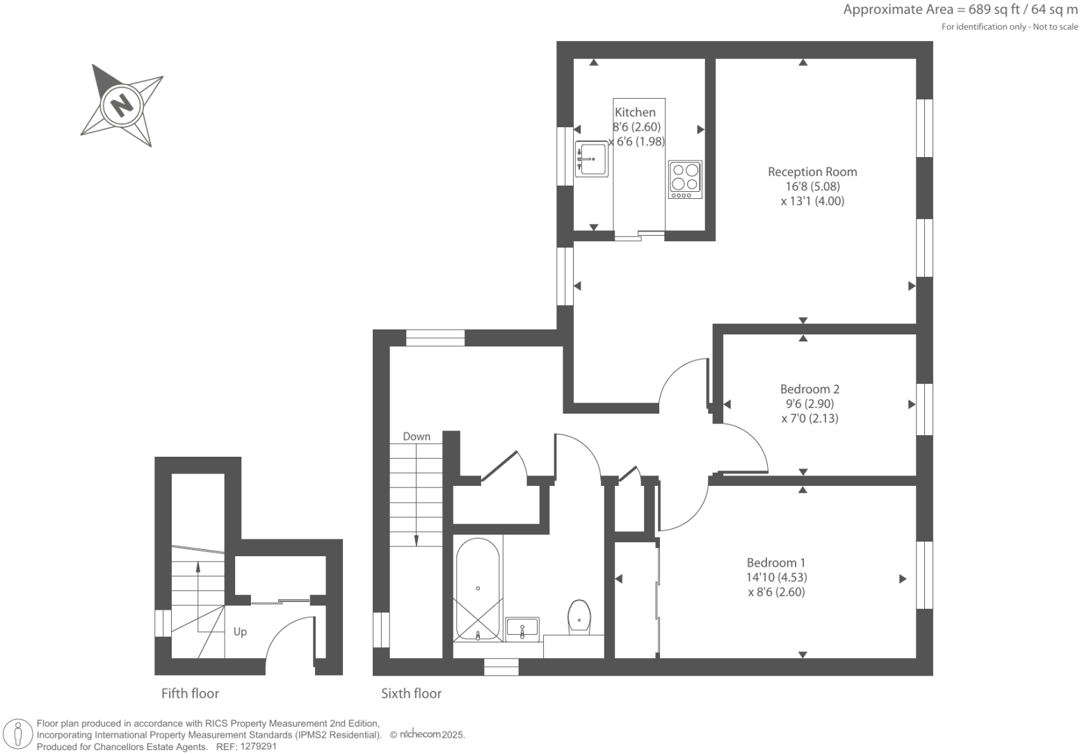
**Standout Features:**
- Bright south-east facing two-bedroom flat on the sixth floor in a purpose-built block for residents aged 55 and over.
- Newly extended lease with 171 years remaining.
- Fantastic views across the London skyline.
- Excellent transportation links: close to St Johns Wood and Little Venice, with multiple underground and mainline stations within easy reach.
- Access to a beautiful communal garden, perfect for relaxation.
- Independent gas central heating, enhanced with double glazing for comfort.
**Potential Downsides:**
- Above-average service charge (£4050).
- Flat is located in an area classified as deprived.
- Maintain awareness of average broadband speeds.
This beautifully positioned two-bedroom flat offers a perfect blend of modern living and urban appeal, ideal for those seeking a peaceful retreat in a vibrant cultural area. With stunning views and abundant natural light, this apartment is designed for comfortable, convenient living. The generous storage throughout is an added bonus, providing the space you need to enjoy a hassle-free lifestyle.
Situated moments from the iconic Lords Cricket Ground and a short stroll to the expansive Regent's Park, this residence boasts significant rental potential for investors, while families can benefit from several nearby schools rated Good to Outstanding.
Given its exceptional location, low crime rate, and excellent mobile signal, this property invites you to envision a life of comfort and security. Explore the potential for future renovations or enhancements in your new home. With all these appealing features, this opportunity won’t last long—secure your viewing today!
2 bedroom apartment for sale in St. Johns Wood Road - Over 55's Development, NW8 — £425,000 • 2 bed • 1 bath • 578 ft²
2 bedroom flat for sale in St. Johns Wood Road, St John's Wood, NW8 — £425,000 • 2 bed • 1 bath • 593 ft²
2 bedroom flat for sale in Grove End House, St John's Wood, NW8 — £525,000 • 2 bed • 1 bath • 624 ft²
2 bedroom flat for sale in St John's Wood Road, St John's Wood, London, NW8 — £385,000 • 2 bed • 1 bath • 603 ft²
4 bedroom flat for sale in St. Johns Wood Road, London, NW8 — £975,000 • 4 bed • 2 bath • 1610 ft²
2 bedroom flat for sale in Grove End Gardens, St Johns Wood, NW8 — £800,000 • 2 bed • 1 bath • 681 ft²










































































