Spacious family home close to station and top schools.
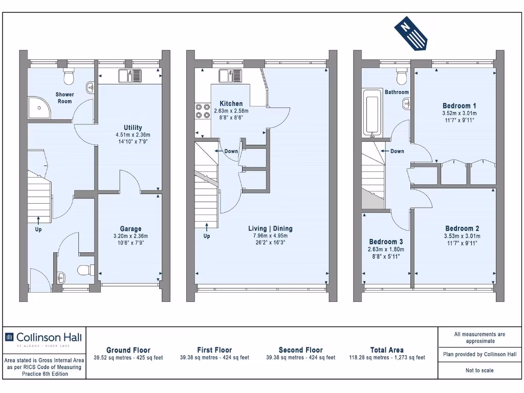
Chain-free three-bedroom end-of-terrace townhouse
This three-bedroom end-of-terrace townhouse offers spacious, newly refurbished accommodation across three floors, ideal for families wanting easy access to St Albans city centre and the mainline station. Recent works include a new kitchen and bathrooms, so the property is largely move-in ready while retaining mid-century character and generous windows that bring in abundant natural light.
Practical benefits include a private driveway, integral garage and handy ground-floor utility and shower rooms — useful for active family life or working from home. The house sits within well-maintained communal grounds in a sought-after AL1 location close to highly rated primary and secondary schools, local amenities and good transport links.
Buyers should note the property dates from the 1950s–60s and has an EPC rating of D (62). Cavity walls are recorded as built without insulation (assumed), and the flat-roof mid-century build may need future maintenance typical of the period. Council tax falls in a moderate band.
Offered chain-free with 1,273 sq ft of accommodation, this home suits families seeking a spacious, refurbished house near top schools and transport, with scope to improve energy performance over time.
4 bedroom terraced house for sale in Abbots Park, St. Albans, AL1 1TW, AL1 — £425,000 • 4 bed • 3 bath • 1150 ft²
2 bedroom terraced house for sale in New House Park, St. Albans, AL1 1UH, AL1 — £500,000 • 2 bed • 1 bath • 743 ft²
3 bedroom terraced house for sale in Orient Close, St. Albans, AL1 — £740,000 • 3 bed • 2 bath • 1036 ft²
3 bedroom semi-detached house for sale in Alban Avenue, St. Albans, AL3 — £700,000 • 3 bed • 2 bath • 1322 ft²
3 bedroom terraced house for sale in Holyrood Crescent, St. Albans, Hertfordshire, AL1 — £550,000 • 3 bed • 1 bath • 1225 ft²
3 bedroom terraced house for sale in Colney Heath Lane, St. Albans, Hertfordshire, AL4 — £519,995 • 3 bed • 2 bath • 1137 ft²


































































