Spacious two-bedroom flat near Wembley Park station, ideal for first-time buyers.
Chain free with 166-year lease remaining
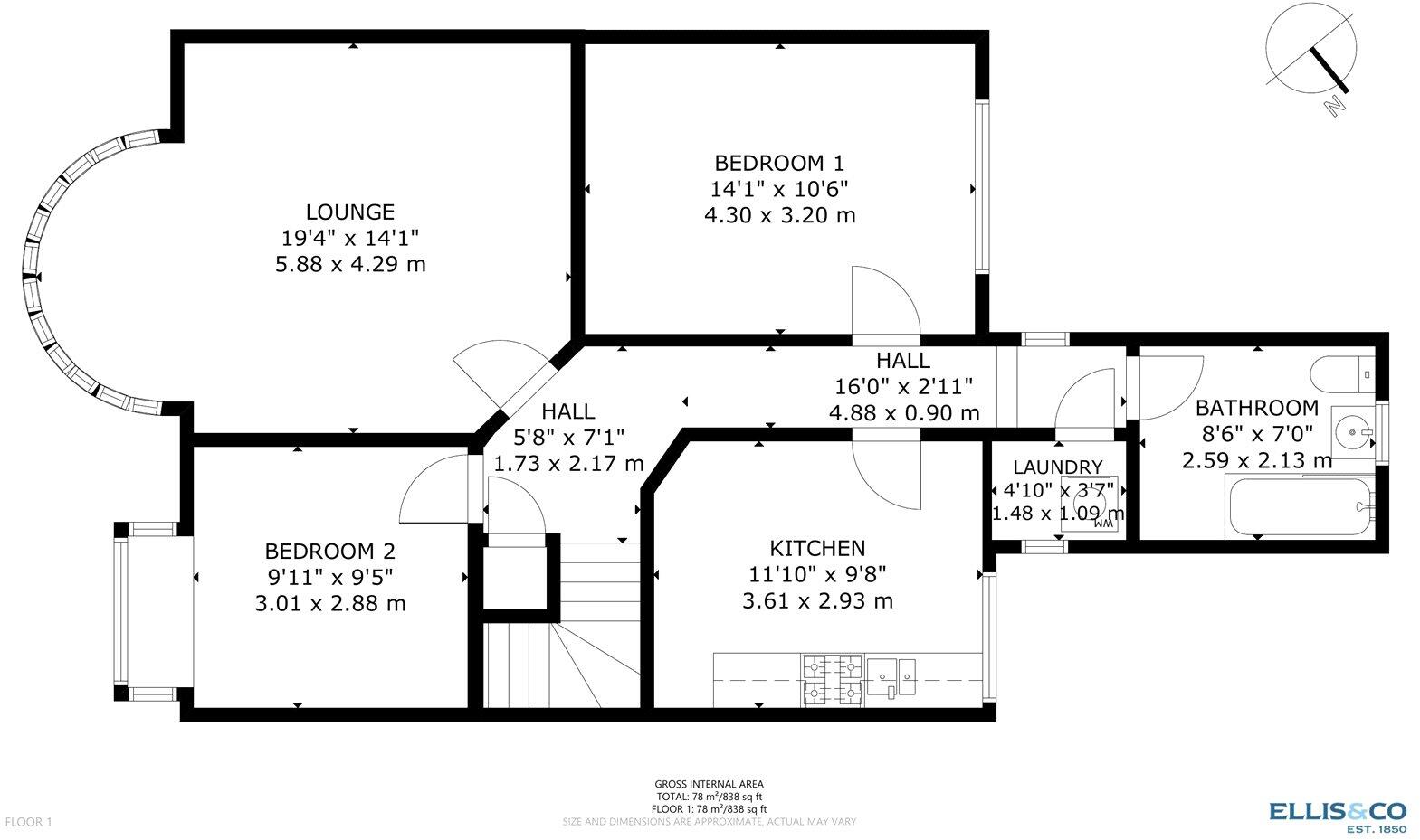
Light-filled two-bedroom maisonette set on the first floor of a 1930s mid-terrace, a short walk from Wembley Park station. The apartment offers a generous reception room, a spacious kitchen with contemporary fittings, one family bathroom and a private garden — practical space for a couple or first-time buyers wanting room to grow.
The property is chain free with a long lease of 166 years and a total area of 838 sq ft, making it straightforward to purchase and flexible for future plans. Heating is by mains gas boiler and radiators; windows are double glazed (fitted 2002 or later). Council Tax band C and an EPC rating of C suggest reasonable running costs for the area.
There is clear potential to add value: the building dates from the 1930s and shows period character, but the exterior and some internal areas need modernization and decorative updating. The solid brick walls are likely uninsulated (as built), so improving insulation and modernising heating or electrics could reduce bills and enhance comfort.
Practical downsides are worth noting: the immediate area records higher crime levels than average, and the property’s façade and driveway need upkeep. Transport links, local shops, and several well-rated schools are nearby, which supports everyday convenience and resale appeal.
2 bedroom maisonette for sale in Heather Park Drive, Wembley, HA0 — £350,000 • 2 bed • 1 bath • 490 ft²
2 bedroom apartment for sale in Harrow Road, Wembley, HA9 — £365,000 • 2 bed • 1 bath • 586 ft²
2 bedroom maisonette for sale in Wembley Hill Road, Wembley, HA9 — £400,000 • 2 bed • 1 bath • 838 ft²
2 bedroom maisonette for sale in Harrow Road, HA0 — £350,000 • 2 bed • 1 bath • 636 ft²
2 bedroom maisonette for sale in The Avenue, Wembley Park, HA9 — £310,000 • 2 bed • 1 bath • 797 ft²
2 bedroom flat for sale in Hillside Avenue, Wembley Park, Wembley, HA9 — £500,000 • 2 bed • 2 bath • 721 ft²






































