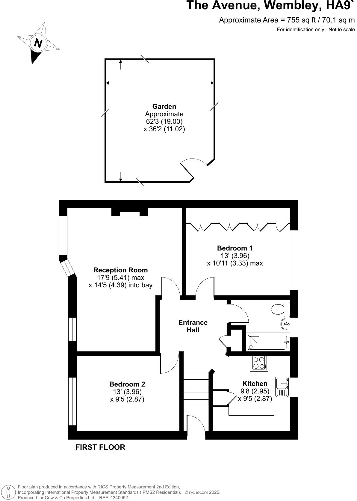
**Standout Features:**
- Spacious 2-bedroom first-floor maisonette (755 sq ft)
- Generously sized private garden
- Modern bathroom and new fitted carpets
- Gas central heating and double glazing
- Chain-free with a long lease
- Excellent transport links (Preston Road & Wembley Park stations nearby)
Nestled in a tranquil residential area of Wembley (HA9 9QL), this charming 2-bedroom maisonette presents an excellent opportunity for first-time buyers or investors. Boasting a spacious 755 sq ft layout, this beautifully presented property features a modern living area, a well-appointed kitchen, and generously sized bedrooms—ideal for families or those seeking additional space. Enjoy the peace and privacy of a large, secluded rear garden, perfect for relaxation or entertaining.
Convenience is key here, with local amenities and transport links just a short stroll away, facilitating an easy commute to London and beyond. Families will appreciate the proximity to quality schools, including Preston Manor School and Michaela Community School, which boast good and outstanding Ofsted ratings. Offered at a guide price of £400,000 - £450,000 and available with no upper chain, this property combines comfort, security, and future potential. Don’t miss out on this inviting home—schedule a viewing today!
2 bedroom maisonette for sale in The Close, Wembley, Middlesex, HA9 — £350,000 • 2 bed • 1 bath • 618 ft²
2 bedroom maisonette for sale in Barnhill Road, Wembley, HA9 — £335,000 • 2 bed • 1 bath • 548 ft²
2 bedroom maisonette for sale in The Avenue, Wembley Park HA9 9QL, HA9 — £435,000 • 2 bed • 1 bath • 746 ft²
2 bedroom maisonette for sale in Fernwood Avenue Wembley Middlesex HA0 2HF, HA0 — £400,000 • 2 bed • 1 bath • 621 ft²
2 bedroom maisonette for sale in Wembley Hill Road, Wembley, HA9 — £400,000 • 2 bed • 1 bath • 838 ft²
2 bedroom maisonette for sale in Braemar Avenue, London, NW10 — £350,000 • 2 bed • 1 bath • 522 ft²






























































