**Standout Features:**
- Newly renovated mid-terrace Victorian house
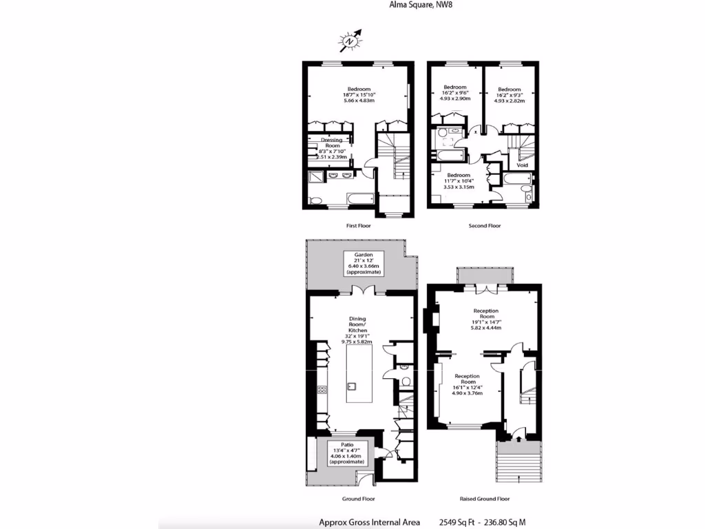
- Spacious layout: 2,549 sq. ft with 4 bedrooms and 3 bathrooms
- Elegant double reception room with high ceilings and natural light
- Direct access to communal gardens from the balcony
- Prime location in the affluent area of Alma Square, St John’s Wood
- Convenient distance to St John's Wood High Street and transport links
**Concerns:**
- Small plot size
- Higher council tax rates due to the desirable location
- Solid brick walls with potential insulation needs
This stunning mid-terrace Victorian house in the prestigious Alma Square area of St John’s Wood is a rare gem that marries classic charm with modern luxury. Spanning approximately 2,549 square feet, the home offers 4 spacious bedrooms and 3 well-appointed bathrooms tailored for both family living and entertaining. The elegant double reception room boasts high ceilings, ample natural light, and leads to a charming balcony overlooking tranquil communal gardens—an idyllic backdrop for relaxation or social gatherings.
Recently refurbished to a high standard, this property exemplifies comfort, sophistication, and space, making it a perfect fit for families or professionals looking to invest in one of London’s most sought-after neighborhoods. With close proximity to vibrant shops, cafes, and excellent transport links, you'll enjoy the best of both tranquil living and city convenience. While the small plot size and higher council tax reflect the property's exclusive location, the potential for family-friendly living and the turn-key condition emphasize this house as an excellent long-term investment. Don't miss the chance to own this exquisite home in a low-crime, affluent community!
6 bedroom terraced house for sale in Alma Square, NW8 — £3,250,000 • 6 bed • 4 bath • 2946 ft²
4 bedroom terraced house for sale in Alma Square, St Johns Wood, London, NW8 — £4,500,000 • 4 bed • 3 bath • 2549 ft²
4 bedroom terraced house for sale in Ordnance Hill, St John's Wood NW8 — £3,500,000 • 4 bed • 3 bath • 1880 ft²
5 bedroom terraced house for sale in Hamilton Gardens, St John's Wood, London, NW8 — £4,500,000 • 5 bed • 5 bath • 2992 ft²
1 bedroom apartment for sale in Alma Square, St. John's Wood, London, NW8 — £950,000 • 1 bed • 1 bath • 489 ft²
5 bedroom detached house for sale in Abercorn Place, St John's Wood, London, NW8 — £6,500,000 • 5 bed • 4 bath • 3201 ft²


































































