**Standout Features:**
- Grade II listed Georgian home from 1820
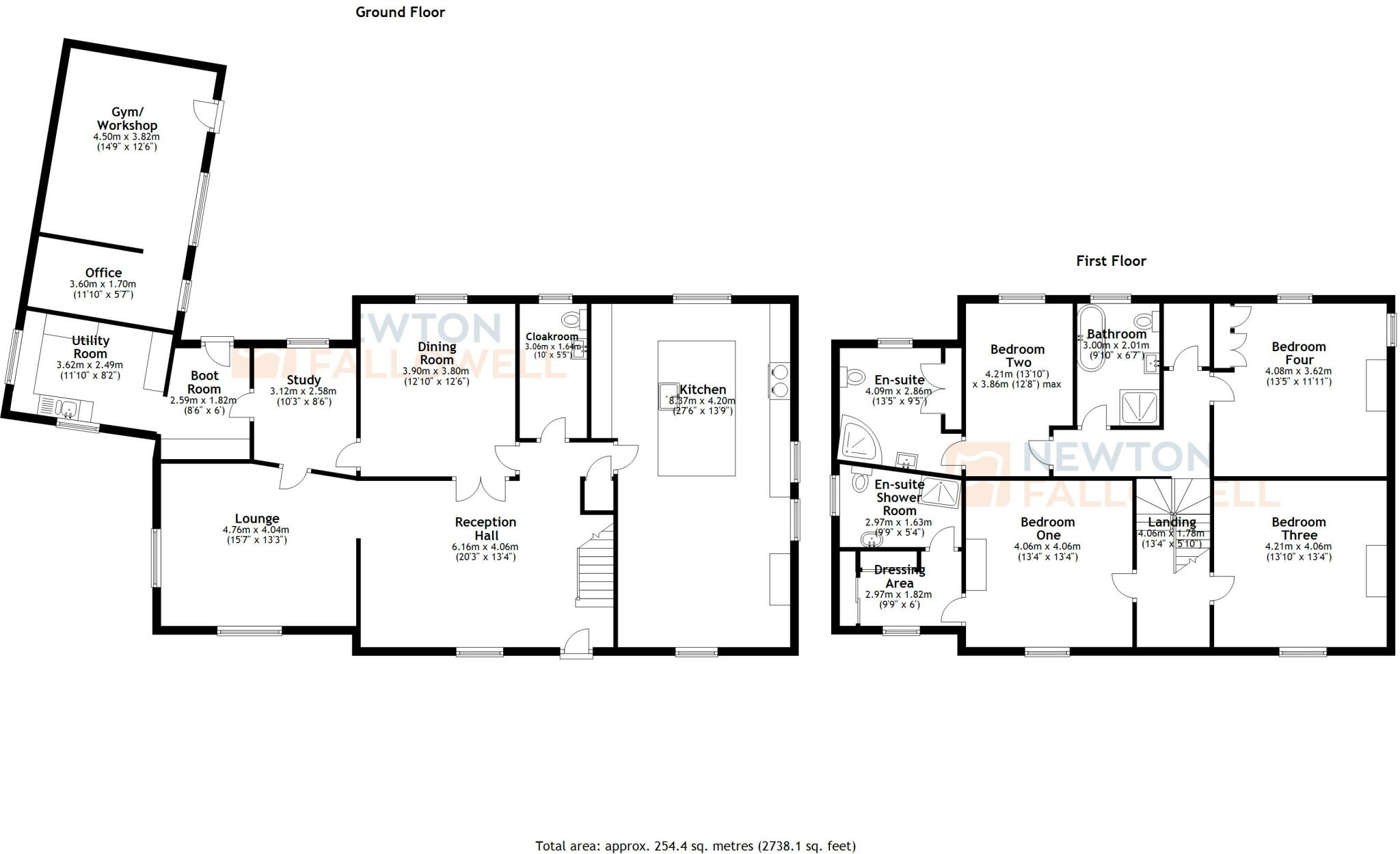
- Four spacious bedrooms, including two with en-suites
- Stunning open-plan kitchen with an 'Aga' range oven and granite surfaces
- Three impressive reception areas and high ceilings throughout
- Expansive circular driveway and lawned rear garden with an 'Alitex' greenhouse
- Freehold tenure with excellent parking options (open garage, workshop/gym)
- EPC rating: E
- Located in a tranquil village with low crime and a sense of community
**Concise Summary:**
The Old Vicarage is a remarkable Grade II listed Georgian home that effortlessly marries historic elegance with contemporary living. With its generous four-bed layout, featuring two luxurious en-suites, this property is perfect for families seeking space and comfort. The heart of the home is the stunning dining kitchen, equipped with an 'Aga' range oven that is sure to delight culinary enthusiasts. Three reception areas provide ample space for both relaxation and entertaining, while the high ceilings and period features enhance the charm throughout.
Outside, the beautifully manicured lawns and a picturesque 'Alitex' greenhouse inspire a serene outdoor lifestyle. The secure circular driveway and additional rear garage add convenience to this idyllic setting. Situated in a sought-after rural village with good local schools and low crime, this unique residence captures the allure of countryside living. Though it has listed status, which may require careful maintenance, it also offers substantial future potential for personalization. Don't miss this exceptional opportunity to own a piece of history—properties like this don’t stay on the market for long!
5 bedroom detached house for sale in Church Street, Glentworth, Gainsborough, Lincolnshire, DN21 — £900,000 • 5 bed • 3 bath • 4531 ft²
4 bedroom detached house for sale in Darlton Road, Dunham-On-Trent, Newark, NG22 — £1,500,000 • 4 bed • 4 bath • 5673 ft²
11 bedroom detached house for sale in Rectory Lane, Finningley, DN9 — £650,000 • 11 bed • 7 bath • 5322 ft²
4 bedroom semi-detached house for sale in Turner Croft, Laughton-en-le-Morthern, Sheffield, S25 — £600,000 • 4 bed • 2 bath • 1878 ft²
4 bedroom house for sale in Holmes Lane, Hooton Roberts, S65 — £750,000 • 4 bed • 3 bath • 2591 ft²
4 bedroom detached house for sale in West Street, West Butterwick, Lincolnshire, DN17 — £450,000 • 4 bed • 2 bath • 2675 ft²


































































































































































































































