**Standout Features:**
- Leasehold with 132 years remaining
- Two bedrooms, including a master bedroom with en suite
- Open plan kitchen/living room
- Allocated off-street parking
- Chain-free sale for easier transaction
- Modern construction from 2007
- Fast broadband and excellent mobile signal
**Potential Downsides:**
- Located in an area with high crime rates
- Average local school ratings, with one rated "Inadequate"
- Service charge of £2,000 and ground rent at £276 annually
- Deprived local area classification
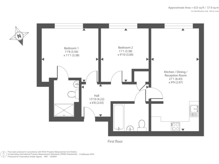
This modern, mid-terrace two-bedroom flat offers a fantastic opportunity for first-time buyers or investors looking for rental potential in Slough. With 623 square feet of cozy living space, the open plan kitchen and living room create a welcoming atmosphere, while the master bedroom's en suite adds a touch of luxury. Enjoy the convenience of allocated off-street parking and the benefit of being chain-free for a quick and hassle-free move.
Located just a stone’s throw from the town center and mainline station, this property makes commuting a breeze. However, prospective buyers should be mindful of the local area's higher crime rates and average school performance. With a bit of personal touch and future renovation potential, this flat could become your comfortable home or an excellent investment. Don't miss this unique opportunity—properties like this are in demand and may not last long on the market!
2 bedroom flat for sale in Slough, Berkshire, SL1 — £220,000 • 2 bed • 2 bath • 713 ft²
2 bedroom flat for sale in Slough, Berkshire, SL3 — £275,000 • 2 bed • 2 bath • 647 ft²
2 bedroom flat for sale in Slough, Berkshire, SL1 — £240,000 • 2 bed • 1 bath • 723 ft²
2 bedroom flat for sale in Bath Road, Slough, SL1 — £235,000 • 2 bed • 2 bath • 617 ft²
1 bedroom flat for sale in Slough, Berkshire, SL1 — £180,000 • 1 bed • 1 bath • 484 ft²
2 bedroom flat for sale in Slough, Berkshire, SL1 — £250,000 • 2 bed • 1 bath • 718 ft²










































