Chain-free ground-floor flat with strong commuter links and rental appeal.
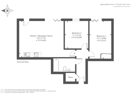
Ground-floor two-bedroom apartment, approx 718 sq ft
This ground-floor, two-bedroom flat in Slough city centre offers straightforward, low‑upkeep living and clear rental potential. The open-plan living/kitchen and large windows make the 718 sq ft layout feel bright and practical for professionals or tenants.
Important ownership details are clear: the property is leasehold with approximately 110 years remaining and is offered chain-free, making a quick purchase possible. Recent build quality (2003–2006), double glazing and electric underfloor heating reduce immediate maintenance needs.
Location is both a strength and a caution. You’re a short walk from shops, buses and main transport links which supports strong demand from commuters and young professionals. However, the local area records higher crime and relative deprivation — factors investors should weigh when forecasting yields or resale.
Overall, this flat suits buy‑to‑let investors seeking a city-centre, low-maintenance asset or owners wanting a compact, well-presented home with easy access to transport. Be mindful of the leasehold status and local area challenges when assessing long-term plans.
1 bedroom flat for sale in 26 High Street, Slough, SL1 — £225,000 • 1 bed • 1 bath • 580 ft²
2 bedroom flat for sale in Slough, Berkshire, SL1 — £230,000 • 2 bed • 2 bath • 484 ft²
1 bedroom flat for sale in Slough, Berkshire, SL1 — £180,000 • 1 bed • 1 bath • 399 ft²
1 bedroom flat for sale in Slough, Berkshire, SL1 — £170,000 • 1 bed • 1 bath • 644 ft²
2 bedroom ground floor flat for sale in Grove Close, Slough, SL1 — £250,000 • 2 bed • 1 bath • 361 ft²
2 bedroom flat for sale in Slough, Berkshire, SL1 — £220,000 • 2 bed • 2 bath • 713 ft²


























































