DH8 7DD - 4 bed modern four bedroom detached in Greenways, DH8 7DD

View on Property Piper

4 bedroom detached house for sale in Delves Lane, Consett, DH8 7DD, DH8

Summary - 1 GREENWAYS CONSETT DH8 7DD

4 bed 1 bath Detached

Compact new-build family home with PV panels, garage and flexible living spaces.
Contemporary open-plan kitchen and dining with French doors
Bay-windowed lounge plus separate study/snug for flexible use
Principal bedroom with en-suite; three additional good-sized bedrooms
Private rear garden and single garage; decent plot size
PV panels reduce energy costs; modern integrated appliances
Compact overall size (approx. 988 sq ft) — rooms are efficiently used
Annual service charge £132.20; freehold tenure stated
Area classified as industrious hardship; check local amenities and schools
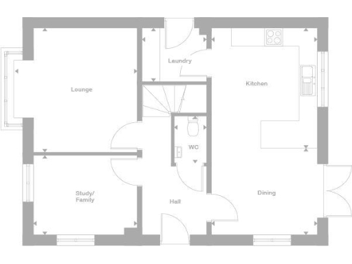
This four-bedroom detached new-build on Delves Lane offers a compact, well-arranged family home with contemporary fittings and energy-saving PV panels. The ground floor's open-plan kitchen and dining area, plus a bright bay-windowed lounge and separate study/snug, deliver flexible living for families who value modern, low-maintenance space.

The principal bedroom includes an en-suite and three further good-sized bedrooms are upstairs alongside a modern family bathroom. The property measures about 988 sq ft and sits on a decent plot with a private rear garden and single garage—practical for everyday family life and storage.

Built with contemporary finishes, the home benefits from integrated appliances, plentiful natural light through dual-aspect rooms and French doors from the dining area. Annual service charge is modest (£132.20) and the plot is freehold, which helps keep running costs predictable.

Notable considerations: the overall internal size is relatively small for a four-bedroom detached home, so room layouts are compact. This is a new build in an area classed as industrious hardship with average local amenities; buyers should confirm council tax band and any optional extras before reservation. Parking is single garage only, which may be restrictive for multiple-car households.

Property Details

Brochure Descriptions

Image Descriptions

Floorplan Description

Rooms

Textual Property Features

Target Audience

AI Tags

Detected Visual Features

Nearby Schools

Nearest Bars And Restaurants

,,,,}

Nearest General Shops

,,}

Nearest Grocery shops

,,}

Nearest Supermarkets

,,}

Nearest Religious buildings

,,}

Nearest Medical buildings

,,,}

Nearest Leisure Facilities

,,,,}

Nearest Tourist attractions

,,}

Nearest Train stations

,,,,}

Nearest Bus stations and stops

,,,,}

Nearest Hotels

,,}

Tags

Local Market Stats

AirBnB Data

Similar Properties

Meta

High Res Images

Compatible Images

Low res Images

Thumbnails

Raw Images

High Res Floorplan Images

Compatible Floorplan Images

Low res Floorplan Images

FloorplanImages Thumbnail

Raw Floorplan Images